Σχηματικές αντιθέσεις
Στον κεντρικό δρόμο της περιοχής της Αβάνας, η οποία παρουσιάζει μεγάλο ενδιαφέρον για τα καταστήματα εστίασης, δημιουργείται μια νέα σύγχρονη ιταλική trattoria, με έμφαση στη διαλλακτική σχέση μεταξύ υλικοτήτων και σχημάτων.
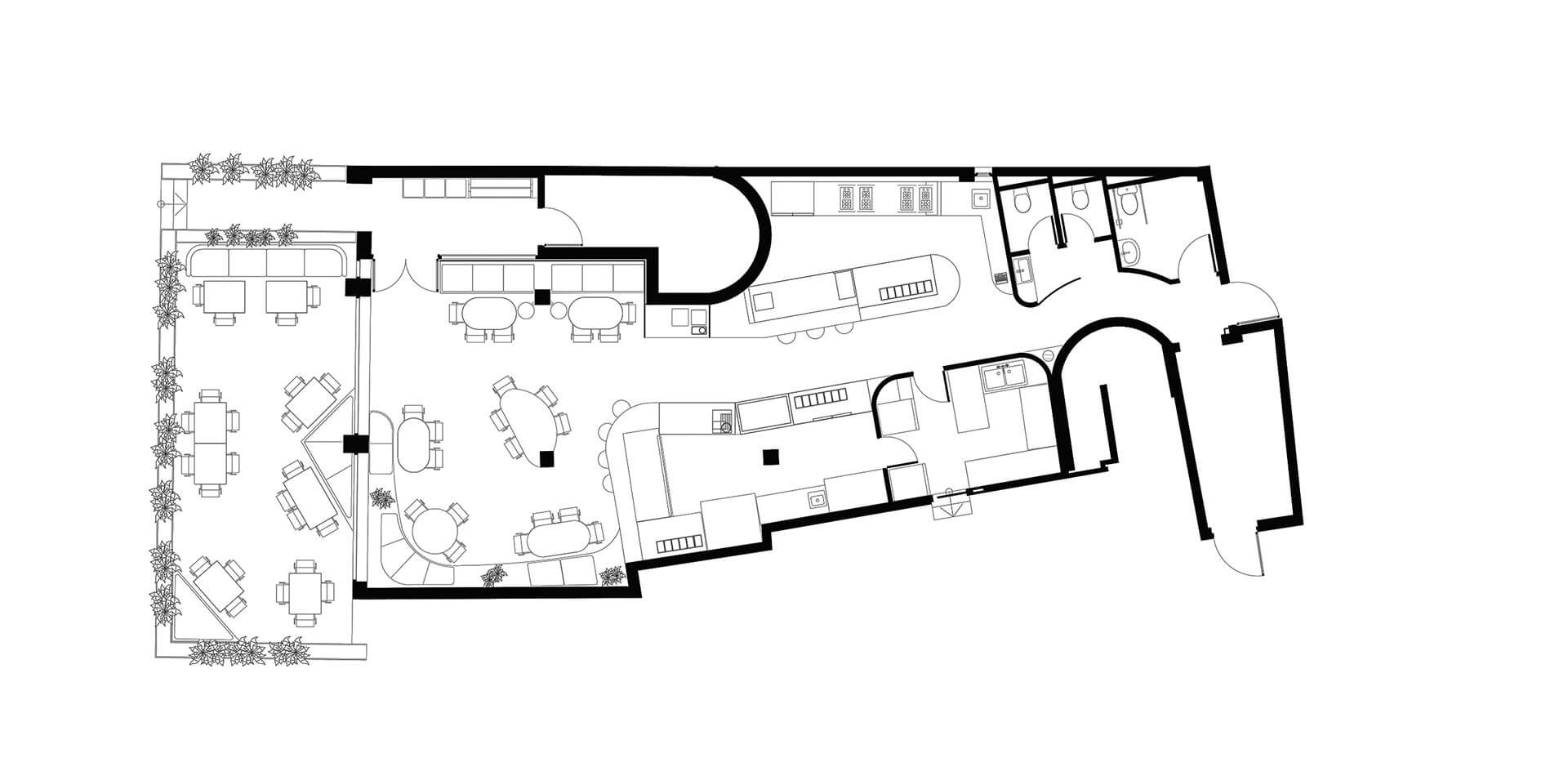
Υπαίθριος σχεδιασμός & διάταξη
Κατά μήκος του πεζοδρομίου συναντάται η υπαίθρια πρώτη σάλα του εστιατορίου. Τους θερινούς μήνες, η μεταλλική πέργκολα ανοίγει, με τα μεγάλα πλατάνια του πεζοδρομίου να προσφέρουν σκίαση κατά τη διάρκεια της μέρας, χωρίς να αποκρύπτουν τον ουρανό το βράδυ. Η περιμετρική φύτευση λειτουργεί ως φυσικό φίλτρο από τους περαστικούς και την κίνηση του δρόμου, σε συνδυασμό με τα πανέλα κόντρα πλακέ θαλάσσης που, μελετημένα ως προς τον σχεδιασμό και την τοποθέτησή τους, επιτρέπουν στο φυσικό φως να εισχωρήσει στον χώρο, δημιουργώντας δραματικές σκιές και ατμόσφαιρα.
Η κύρια αίθουσα συνυπάρχει με την ανοιχτή κουζίνα, με τη χαμηλή μπάρα μπροστά στον πάγκο των chef να ενισχύει την αμεσότητα και το ανεπιτήδευτο ύφος, αρχές που βρίσκονταν στο πνεύμα του σχεδιασμού. Οι αναπαυτικοί καναπέδες από ξύλο παλίσανδρου αναπτύσσονται περιμετρικά και στρέφονται προς την καρδιά του εστιατορίου, την κουζίνα, δίνοντας την αίσθηση ενός μεγάλου καθιστικού. Τραπέζια για μικρότερες και μεγαλύτερες παρέες εναλλάσσονται στον χώρο. Η υπάρχουσα κεντρική κολώνα, δεσπόζον στοιχείο της αίθουσας, αγκαλιάστηκε από ένα ειδικής κατασκευής μαρμάρινο τραπέζι και αποτέλεσε τη βάση για τη μεταλλική εναέρια ζαρντινιέρα.

Παλέτα υλικών
Το εσωτερικό επενδύθηκε με συμμετρικά διάτρητα πάνελ από ξυλεία δρυός και παλίσανδρου, τα οποία ‘’ντύθηκαν’’ με κρυφό φωτισμό, χρωματίζοντας τον χώρο με τις αντανακλάσεις των ξύλων. Τα υφάσματα των καθισμάτων είναι εμπνευσμένα από την ιταλική φινέτσα, τόσο ως προς τον συνδυασμό τους όσο και ως προς τη ραφή τους. Οι τοίχοι με τον τραβηχτό σοβά παίρνουν λάμψη από τους χωνευτούς διάσπαρτους καθρέπτες, ενώ η αντίθεση των υλικών ενισχύεται με τις σανίδες οικοδομής στο δάπεδο και την μπρούτζινη επένδυση όλων των βιομηχανικών inox μηχανημάτων της κουζίνας. Συνολικά, ο διάλογος απλών υλικών, όπως αυτός των σανίδων οικοδομής και του σοβά, με πιο εκλεπτυσμένα υλικά, όπως το μάρμαρο και ο ορείχαλκος, πετυχαίνουν μία ισορροπία που αντικατοπτρίζει το πνεύμα του εστιατορίου.

Μορφολογίες & χρωματισμοί
Στη σύνθεση κυριαρχούν κυκλικά στοιχεία και καμπύλες, τόσο στην κάτοψη, όσο και στον επιμέρους σχεδιασμό, από το σχήμα των τραπεζιών, των φωτιστικών, αλλά και των οπών στις ξύλινες επενδύσεις. Ο κύκλος χρησιμοποιήθηκε σε επανάληψη δημιουργώντας ένα κυρίαρχο μοτίβο, ενώ το τετράγωνο πλακίδιο που καλύπτει τους χώρους των παρασκευαστηρίων και ο εμφανής πράσινος αρμός επιλέχθηκαν ώστε να δημιουργηθεί σχηματική αντίθεση.
Στη χρωματική παλέτα κυριαρχούν το πράσινο -στην πόρτα, στα τραπέζια, σε μερικούς τοίχους, στα καθίσματα και στους αρμούς των πλακιδίων- και το κίτρινο -στους καναπέδες και στους τόνους του ξύλου- με λεπτομέρειες σε τόνους ορείχαλκου, όπως στην επένδυση του bar και σε κάποια φωτιστικά.






