Μυσταγωγική ατμόσφαιρα
The hotel is housed in an existing 19th-century stone structure in the heart of Rethymno’s old town and consists of five suites offering all contemporary comforts.
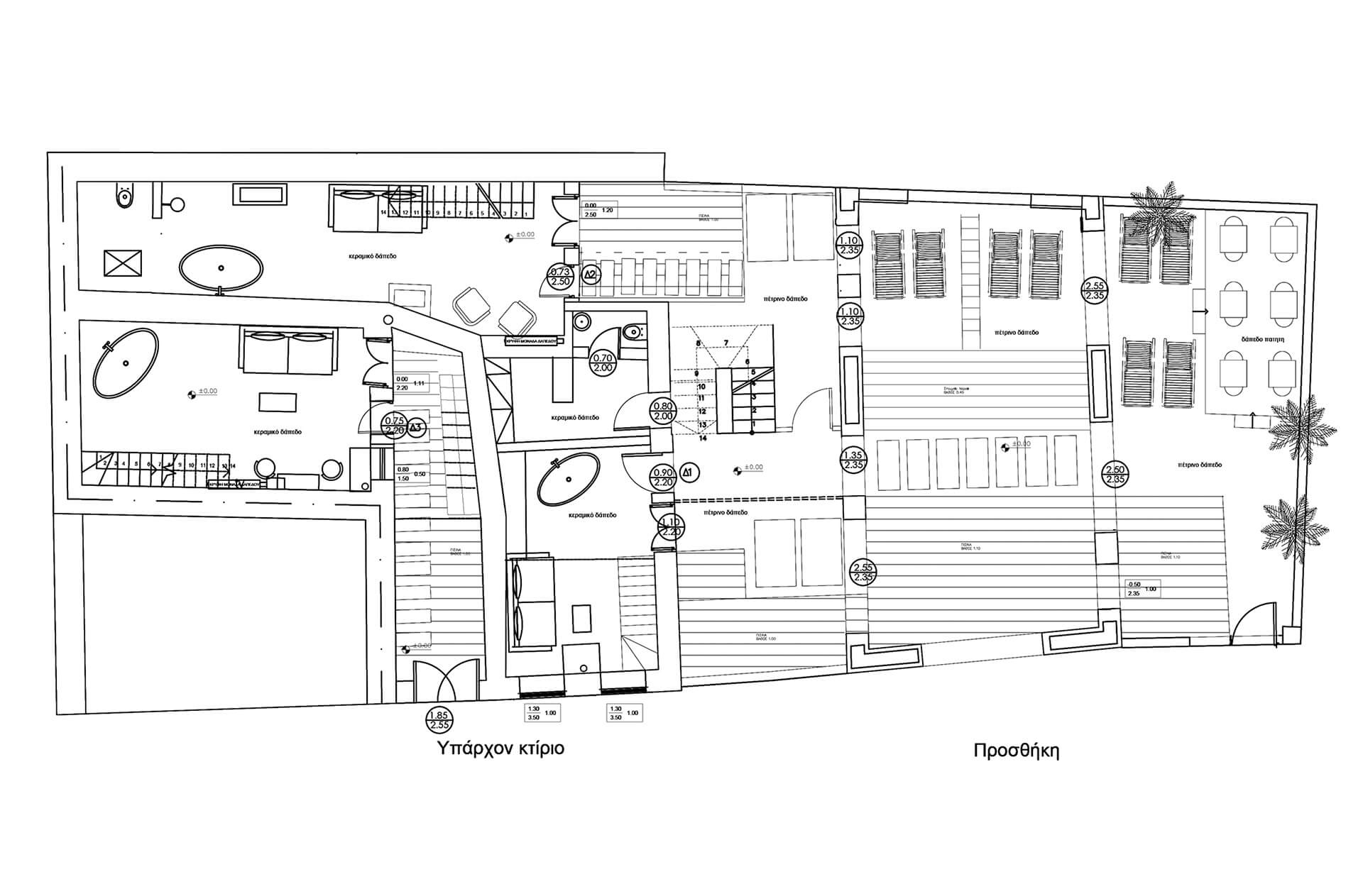
Το ξενοδοχείο σχεδιάζεται μέσα σε υφιστάμενο πέτρινο οθωμανικό κτίριο του 19ου αιώνα στον ιστό της παλιάς πόλης του Ρεθύμνου και αφορά στη δημιουργία πέντε σουιτών που παρέχουν όλες τις σύγχρονες ανέσεις.
Φιλοσοφία σχεδιασμού
Στόχος της αρχιτεκτονικής μελέτης είναι να μεταβιβάσει στον επισκέπτη στοιχεία της κρητικής κουλτούρας, προσφέροντας την εμπειρία του παλιού και μυσταγωγικού σε συνύπαρξη με τις σύγχρονες τάσεις. Κατά την επανάχρηση του υφιστάμενου κελύφους τονίστηκε το πέτρινο στοιχείο και παρέμεινε το σύνολο της λιθοδομής με κάποιες ενισχύσεις για λόγους στατικότητας. Με στόχο να μην αλλοιωθεί το αρχικό ύφος, όλα τα μηχανολογικά και ηλεκτρολογικά στοιχεία κρύφτηκαν στους τοίχους και στα δάπεδα.
Στο οικόπεδο δίπλα από το υπάρχον κέλυφος σχεδιάστηκε ένα πέτρινο “κουφάρι“ με κυρίαρχο στοιχείο το νερό, το οποίο αποτελεί την κοινόχρηστη πισίνα του ξενοδοχείου και δημιουργεί μια αίσθηση όασης στην καρδιά της παλιάς πόλης. Η σύνδεση των δυο πέτρινων κτισμάτων πραγματοποιείται με ένα κλιμακοστάσιο από ανεπίχριστο σκυρόδεμα.

Παλέτα υλικών
Με γνώμονα τον τονισμό του χαρακτήρα του έργου, τα βασικά υλικά που επιλέχθηκαν ήταν η πέτρα, το ξύλο, ο πηλός και το σκουριασμένο σίδερο. Δημιουργήθηκαν έτσι ειδικές κατασκευές, είτε επαναχρησιμοποιήθηκαν υφιστάμενα στοιχεία από το κτίριο. Τα δάπεδα είναι κατασκευασμένα από μακρόστενα πλακίδια πηλού, ενώ οι υδρορροές από πήλινα κομμάτια σωλήνων που ενώνονται, όπως οι παραδοσιακές κρητικές υδρορροές.

Ειδικές κατασκευές
Τα μεταλλικά στοιχεία, όπως κουφώματα, κάγκελα και ζαρντινιέρες, είναι από σκουριασμένο σίδερο που έχει λουστραριστεί. Οι γυάλινες επιφάνειες είναι ειδικής κατασκευής ώστε να αποπνέουν χαρακτήρα παλαιότητας, ενώ για τις πόρτες και τα έπιπλα έγινε επανάχρηση των παλιών ξύλινων στοιχείων που βρέθηκαν στο κτίριο. Για τα δομικά ξύλινα στοιχεία χρησιμοποιήθηκε καστανιά από το Άγιο Όρος χωρίς καμία επεξεργασία. Τέλος, οι κλειδαριές των δωματίων είναι παλιές οθωμανικές, οι οποίες έχουν βρεθεί στην παλιά πόλη του Ρεθύμνου και έχουν ανακατασκευαστεί.






