Αλληλοτομία όγκων
Η μελέτη αφορά σε ακίνητο εντός του συνεκτικού ιστού στην πόλη του νησιού της Χίου, όπου η δόμηση είναι πυκνή με το συγκεκριμένο να γειτνιάζει βορειοανατολικά με όμορο ακίνητο με τις υπόλοιπες πλευρές του ελεύθερες.
Φιλοσοφία σχεδιασμού
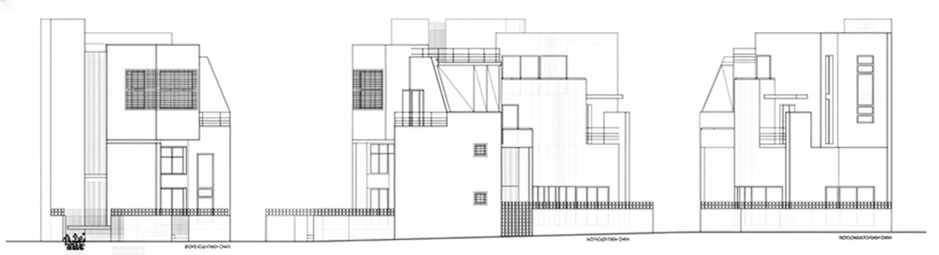
Στόχος της σύνθεσης ήταν η αναζήτηση αρχιτεκτονικής έκφρασης που αντιστέκεται στη μηχανιστική εφαρμογή μορφοπλαστικών περιορισμών. Τη σύνθεση της ογκοπλασίας του κτιρίου πλάθουν διαφορετικές γεωμετρίες μορφώνοντας τις όψεις, επιτυγχάνοντας την περιμετρική πλαστικότητα του οικοδομήματος. Η αλληλοτομία των όγκων δημιουργεί το συμπαγή κορμό του κτιρίου το οποίο αγκιστρώνεται στον πυρήνα του κλιμακοστασίου μεταφέροντας την κίνηση από το υπόγειο μέχρι το δώμα.

Λειτουργική οργάνωση
Το ισόγειο διαμέρισμα επωφελείται αποκλειστικά της πρόσβασης τόσο ανατολικά στον υπαίθριο χώρο από τους εσωτερικούς χώρους διημέρευσης όσο και δυτικά μέσω των υπνοδωματίων σε ιδιωτικό οριοθετημένο μικρό κήπο. Τα μεγάλα ανοίγματα στις όψεις του συμβάλλουν στην οπτική εκτόνωση του εσωτερικού προς το εξωτερικό διαμορφωμένο πράσινο και στην εξωστρέφεια του διαμερίσματος, την ιδιωτικότητα του οποίου εξασφαλίζει η περιμετρική περίφραξη από συμπαγές τοιχίο και κλωστρά.
Το διαμέρισμα του ορόφου οργανώνεται σε δύο επίπεδα, το πρώτο επίπεδο και τη σοφίτα. Όλοι οι χώροι έχουν πρόσβαση σε βεράντες σε διαφορετικά σημεία των όψεων, με διαφορετικές γεωμετρίες και οπτικές φυγές. Με τη σοφίτα να οριοθετείται πάνω από τα υπνοδωμάτια εξασφαλίζεται διπλό ύψος στους κοινόχρηστους χώρους το οποίο σε συνδυασμό με τη μεταλλική κατασκευή στο νότο και τα μεγάλα ανοίγματα βορειοδυτικά δίνουν διαφορετικές ποιότητες στο σύνολο του διαμερίσματος. Χαρακτηριστικό στοιχείο της όψης είναι το καφασωτό περίβλημα που λειτουργεί ηλιοπροστατευτικά χωρίς ωστόσο να εμποδίζει τη θέα από το εσωτερικό της κατοικίας. Αντίθετα το μεγάλο υαλοστάσιο προς το νότο, αφήνει με ένα σύστημα εσωτερικών περσίδων στον ήλιο να εισέρχεται τη χειμερινή περίοδο επιτρέποντας το άμεσο κέρδος.

Υλικά & βλάστηση
Επί της κεντρικής οδού η καμπύλη που κατευθύνει την πρόσβαση στην είσοδο ενισχύει παράλληλα την αίσθηση του περίκλειστου ενώ η σύνθεση διαφορετικών υλικών – έγχρωμα επιχρίσματα, εμφανές σκυρόδεμα, μεταλλικές κατασκευές, υαλοστάσια – αναδεικνύει τις γεωμετρίες των όγκων. Τέλος, προτεραιότητα ήταν το κτίριο να περιβάλλεται από πυκνή βλάστηση γι’ αυτό τα τμήματα που διαστρώνονται με χυτό υλικό στον ακάλυπτο χώρο είναι τα απολύτως απαραίτητα για την εξασφάλιση των προσβάσεων.






