Λειτουργική συνύπαρξη
Το Ergon Bakehouse είναι ξενοδοχείο, ταυτόχρονα όμως και ένας χώρος παρασκευής αρτοποιημάτων, κατάστημα και εστιατόριο: Ένας πολυδιάστατος προορισμός γαστρονομίας και φιλοξενίας στο ιστορικό κέντρο της Αθήνας, σε ένα διατηρητέο κτίριο σχεδιασμένο από τον Βασίλη Τσαγρή στις αρχές του εικοστού αιώνα.
Φιλοσοφία σχεδιασμού
Το κτίριο προηγουμένως φιλοξενούσε κατοικίες και γραφεία, ενώ το ισόγειο ήταν εμπορικό κατάστημα. Το σύνολο αποτελεί παράδειγμα κλασικής αθηναϊκής αρχιτεκτονικής, η οποία έχει επιτυχώς διατηρηθεί, με το νέο design να έχει προσαρμοστεί σε αυτή. Σήμερα, είναι ορατές οι λεπτομέρειες τόσο του αισθητικού, όσο και του λειτουργικού παρελθόντος του κτιρίου, όπως οι γύψινοι διάκοσμοι, ένα από τα υφιστάμενα κλιμακοστάσια και ο ανελκυστήρας. Από την κύρια είσοδο μέχρι και το εσωτερικό των δωματίων, ο σχεδιασμός χρησιμοποιεί ως βασικό άξονά του τον κύκλο ζωής της ζύμης και την ατμόσφαιρα ενός παραδοσιακού φούρνου.
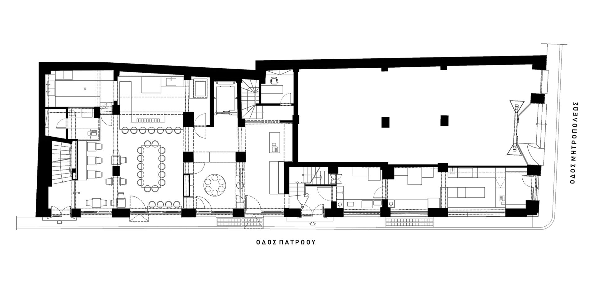
Στον κυρίως χώρο του ισογείου βρίσκεται το 72H Artisanal Bakery, όπου ψωμί και άλλα αρτοποιήματα προετοιμάζονται και ψήνονται μετά από 72 ώρες “ξεκούρασης”. Η επιβλητική βιτρίνα οδηγεί τον επισκέπτη σε τρεις διακριτές περιοχές: στο κατάστημα, όπου πωλούνται προϊόντα για σπιτικές αρτοπαρασκευές, τον χώρο μαγειρέματος και το 72Η Lab -τον χώρο προπαρασκευής, με τα υφιστάμενα ανοίγματα να αφήνουν ορατό το open-plan workshop, διάταξη που συνήθως παραμένει κρυμμένη στα πιο συμβατικά αρτοποιεία.
Κεντρικά βρίσκεται ο υφιστάμενος χώρος εισόδου, που οδηγεί σε τρία κομβικά σημεία :το κατάστημα και το 72Η Eatery, τη reception του ξενοδοχείου και τον χώρο αναμονής. Στο κτίριο υπάρχουν δύο κλιμακοστάσια και δύο ανελκυστήρες, ένας ο οποίος προϋπήρχε και ένας νέος, που εντάχθηκε για να εξυπηρετήσει τις αυξημένες ανάγκες κυκλοφορίας.

Λειτουργική οργάνωση
Η διάταξη των δωματίων, σε τρεις ορόφους, εναρμονίζεται με την υφιστάμενη αρχιτεκτονική, ακολουθώντας τα ανοίγματα των όψεων τα οποία ορίζουν το ευρύχωρο μέγεθός τους. Κάθε δωμάτιο είναι σχεδιασμένο ώστε να αναπαράγονται στοιχεία που αφορούν τον φούρνο και την επαγγελματική κουζίνα: σκούρο πυρότουβλο, επενδύσεις στους τοίχους, πάγκοι από ανοξείδωτο ατσάλι και λινά υφάσματα σχηματίζουν τη συνολική εικόνα.

Custom στοιχεία & φωτισμός
Τα εσωτερικά σκίαστρα προτάθηκαν ως επίλυση συσκότισης, ενσωματωμένα στα υφιστάμενα ανοίγματα, διαμορφώνοντας το φως και δημιουργώντας μία γαλήνια, φιλόξενη ατμόσφαιρα. Ο οντάς, ως μοναδικό στοιχείο του δωματίου, εξυπηρετεί ως επιπρόσθετο κρεβάτι, αλλά και ως επιφάνεια ανάπαυσης, παραδοσιακά παρούσα σε ελληνικά σπίτια, ενισχύοντας τη λειτουργικότητα.
Ο φωτισμός είναι λιγοστός, σημειακός και στοχευμένος. Μέσω ενός συστήματος ανοξείδωτων λεπτών σωληνώσεων που διατρέχουν όλο το δωμάτιο επιτυγχάνεται ένα σύνολο λύσεων. Λόγω των στατικών ενισχύσεων στους εξωτερικούς περιμετρικούς τοίχους, η διέλευση καλωδιώσεων ήταν αδύνατη, οπότε μέσω των σωληνώσεων τρέχουν καλωδιώσεις ενώ δημιουργείται φορέας φωτισμού και ανάρτησης υφασμάτων.






