Μπαρόκ αντανακλάσεις
Το Semiramis, ιδιοκτησίας του συλλέκτη Δάκη Ιωάννου, ανήκει σε ένα portfolio μοναδικών ξενοδοχείων που έχουν σχεδιαστεί από καταξιωμένους designers. Όταν άνοιξε τις πόρτες του, στις αρχές της δεκαετίας του 2000, η τολμηρή διαμόρφωση του Karim Rashid έφερε αναστάτωση στην Κηφισιά, προκαλώντας την προαστιακή αισθητική της. Με την πάροδο του χρόνου, διαδοχικές ανακαινίσεις απομάκρυναν το bar-restaurant από την ταυτότητα του ξενοδοχείου. Ο νέος χώρος, Koumkan, εντάσσεται εκ νέου στο DNA του Semiramis, αντανακλώντας τις σύγχρονες πολιτιστικές, γαστρονομικές και κοινωνικές αθηναϊκές τάσεις.
Φιλοσοφία σχεδιασμού
Το Koumkan συνδυάζει τη μοναδικότητα του Semiramis με τη διαχρονική αίσθηση των grand hotel lounges, μέσα από ένα μινιμαλιστικό πρίσμα. Σκηνοθετώντας διαδοχικές ατμόσφαιρες, δημιουργεί έναν μικρόκοσμο που συμπυκνώνει τον χαρακτήρα των χώρων υποδοχής εμβληματικών ξενοδοχείων σε ολόκληρο τον κόσμο. Οι επισκέπτες κατεβαίνουν ένα κλιμακοστάσιο από travertino με κατεύθυνση προς έναν κήπο, ο οποίος αντανακλάται στους καθρέφτες που επενδύουν τον τοίχο.
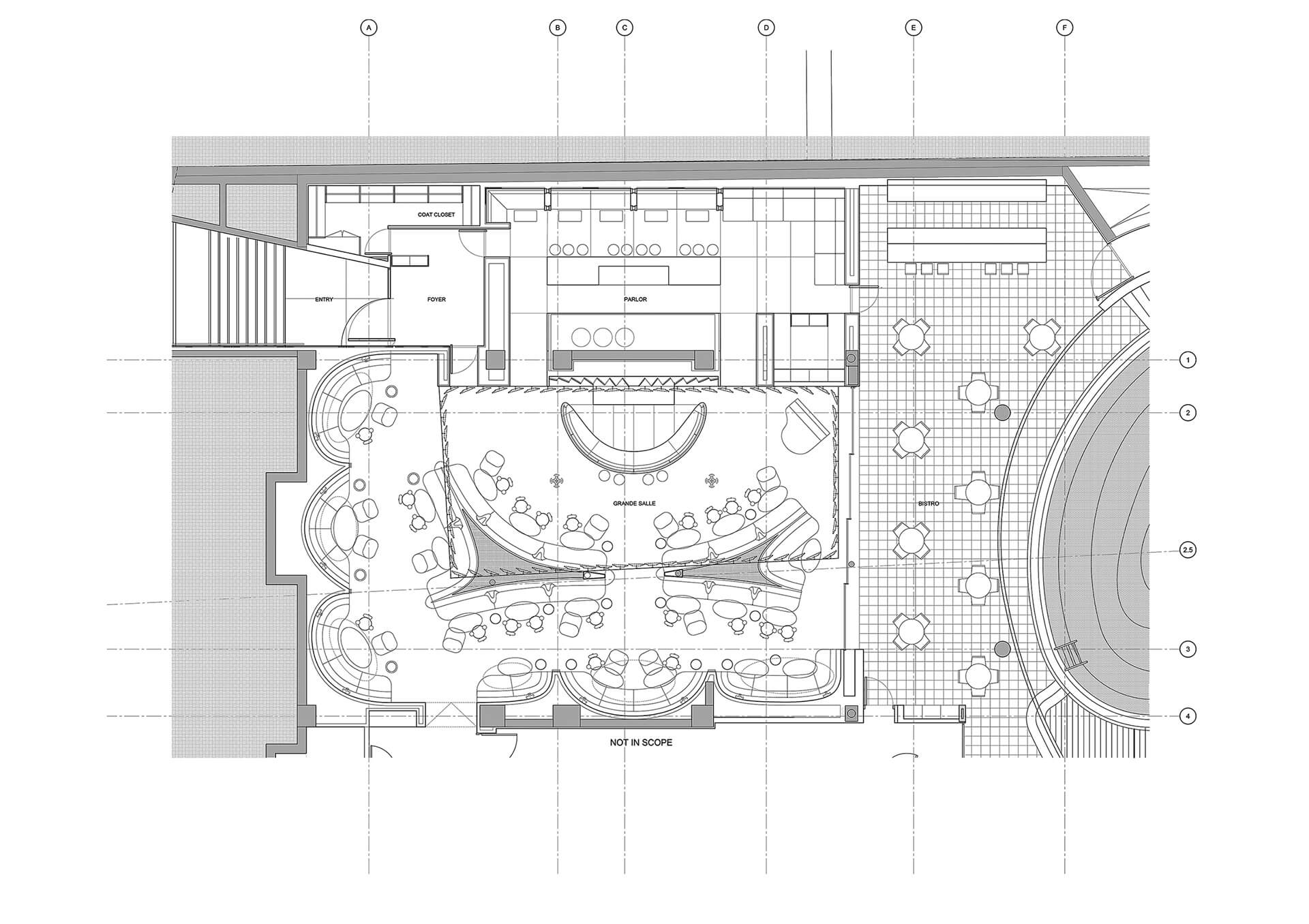
Μία επιβλητικού μεγέθους περιστροφική πόρτα οδηγεί στο Foyer, έναν χώρο υποδοχής σε ροζ απόχρωση με απαλό διάχυτο φωτισμό. Εκεί, δύο επιφάνειες travertino σε συμμετρική διάταξη, πλαισιωμένες από καθρέφτη, αποδίδουν την έννοια της πολυτέλειας μέσα από μια ισχυρή δήλωση, αναδεικνύοντας την ανεκτίμητη αξία του σχεδόν άδειου χώρου. Μία κρυφή πόρτα οδηγεί στο Parlor, έναν πρώτο χώρο bar που επενδύεται ολόκληρος με σκούρο πράσινο μάρμαρο Τήνου. Το συγκεκριμένο πέτρωμα, το οποίο για μεγάλο διάστημα θεωρούνταν ευτελές εξαιτίας των ακανόνιστων αποχρωματισμών του, μετατρέπεται σε banquettes, DJ booth, ράφια και bar, σαν να έχουν βγει όλα από τον ίδιο μονόλιθο. Η επένδυση καθρέφτη στην οροφή διευρύνει τον χώρο, ενώ vintage απλίκες από ανοξείδωτο χάλυβα και ένας custom πολυέλαιος προσφέρουν θερμό, έμμεσο φωτισμό.

Χωρική οργάνωση
Το δωμάτιο, σαν να ήταν ορυχείο, έχει περίκλειστη ατμόσφαιρα, συνδυάζοντας τα ακατέργαστα υλικά με τις εκλεπτυσμένες λεπτομέρειες. Σε συνέχεια του Parlor, δύο διάδρομοι οριοθετούν τη Grande Salle, έναν χώρο lounge, cocktail bar και εστιατορίου με χαρακτηριστικό του το καλειδοσκοπικό αίθριο με καθρέφτες ύψους 7m. Custom κρεμαστά φωτιστικά με ανακλαστήρες δημιουργούν το εφέ μιας ντισκομπάλας που έχει γυρίσει την εξωτερική της επιφάνεια στο εσωτερικό. Καμπύλες banquettes δημιουργούν σχήματα boomerang που μοιάζουν να αιωρούνται πάνω στο ανοιχτόχρωμο ροζ χαλί από κοκοφοίνικα.
Οι ελεύθερα τοποθετημένες banquettes στο κέντρο γίνονται περίοπτες, ενώ τα τραπέζια στην πλευρά των τοίχων προσφέρουν μεγαλύτερη ιδιωτικότητα. Ένα “banana bar” από ροζ travertino ξεπροβάλλει στον χώρο, ενισχύοντας τις δυναμικές του καμπύλες. Η αισθητική της Grande Salle έχει ως έμπνευση τα αφηρημένα ζωγραφικά έργα του βρετανού εικαστικού William Streng, με σκούρους και ανοιχτούς σαρκώδεις τόνους σε μοτίβα που μοιάζουν σαν σημάδια σε επιδερμίδα.

Υλικά & επίπλωση
Custom υφάσματα χρωματισμένα με παραδοσιακές τεχνικές και ανάγλυφα επιχρίσματα στους τοίχους εντείνουν την αδρή ατμόσφαιρα. Η Grande Salle επεκτείνεται στο Grotto, ένα στεγασμένο υπαίθριο lounge που συνδέει το εσωτερικό με την περιοχή της πισίνας. Στη διαμόρφωση, που μοιάζει με σπήλαιο, χρησιμοποιούνται τοπικά υλικά και χειροποίητες επεξεργασίες.
Το Grotto τυλίγεται γύρω από την καμπύλη της πισίνας, ανακαλώντας τον τροπικό μοντερνισμό και την αρχιτεκτονική κληρονομιά της Δυτικής Ακτής. Τοίχοι από ροδακινί τερακότα και ροζ παστέλ travertinoαναδεικνύουν τη θερμή απόχρωση του φωτισμού, με το pool bar, σε σχήμα ανάστροφου ζιγκουράτ, να συμπληρώνει τον χαλαρό, κομψό σχεδιασμό. Η στάθμη του Grotto είναι βυθισμένη λίγο κάτω από την επιφάνεια του νερού της πισίνας, φέρνοντας το ύψος του ματιού στη στάθμη των κολυμβητών. Έτσι, σκηνοθετείται ένα διφορούμενο παιχνίδι του βλέμματος, παράλληλα με τη διασκέδαση. Σε ολόκληρο το έργο, ένας συνδυασμός από αντίκες, κατά παραγγελία έργα τέχνης και custom έπιπλα επαναφέρει τον ρετρό-φουτουριστικό χαρακτήρα του Semiramis στις αρχικές του καταβολές.
Ξεχωρίζουν οι επιχρωμιωμένες καρέκλες από ανοξείδωτο χάλυβα με έμπνευση από το μεσογειακό Riviera Styleτης δεκαετίας του ’50, γιγάντια κεραμικά της Ελίνας Βασιλάκη και καθρέφτες της Όλγας Μηλιαρέση-Φωκά. Περιλαμβάνονται επίσης έργα ανερχόμενων εικαστικών από τη συλλογή του Δάκη Ιωάννου, όπως οι μαύρες καρέκλες της Έλλης Ιωάννου και το προκλητικό “Mama Issues” της Αλεξάνδρας Ντορέ στην είσοδο.
Το Koumkan διατηρεί το πνεύμα ενός μεσοπολεμικού bar στο Μιλάνο ή τη Βιέννη, αντικαθιστώντας την παραδοσιακή διακόσμηση με μια ιδιοσυγκρατική αρχιτεκτονική επεξεργασία. Η διαρρύθμιση, με τις πολλαπλές χωρικές διαδοχές, τις ανακλαστικές οροφές και τον σύγχρονο μπαρόκ χαρακτήρα, δημιουργεί έναν νέο προορισμό στην Αθήνα, τόσο για τους επισκέπτες όσο και για τους μόνιμους κατοίκους.






