Container εργασίας
Τα νέα γραφεία στεγάζονται σε ένα βιομηχανικό κέλυφος επιφάνειας 1.200m2, όπου κυριαρχούν μεταλλικά ράφια αποθήκευσης καλωδίων από το δάπεδο έως την οροφή. Η κεντρική ιδέα της διαμόρφωσης αφορά στην κατάλληλη χωροθέτηση “container εργασίας”, με σκοπό να φιλοξενήσουν τα γραφεία του προσωπικού.
Εταιρική ταυτότητα & σχεδιασμός
Η μορφή του container επιλέχθηκε ως χαρακτηριστικό της βιομηχανικής ταυτότητας και της περιβαλλοντικής ευθύνης της εταιρείας. Όπως τα προϊόντα της παράγονται με σκοπό να είναι πλήρως ανακυκλώσιμα, έτσι και το container, ως μέσο αποθήκευσης και μεταφοράς τους, μετασχηματίζεται και αποκτά νέα χρήση ως χώρος γραφείων. Δημιουργούνται δύο εστίες εκατέρωθεν του κεντρικού χώρου αποθήκευσης και συσκευασίας προϊόντων, ώστε να μην εμποδίζεται η ομαλή κίνηση μηχανημάτων και προσωπικού.

Χωρική οργάνωση
Στη δυτική πλευρά του κτιρίου τοποθετήθηκε το μεγαλύτερο σε διάσταση container για να αποτελέσει χώρο αναμονής των πελατών και παραλαβής των εμπορευμάτων, μαζί με γραφείο κίνησης, περιοχή φοριαμών του προσωπικού και αρχείο. Στην ανατολική, δημιουργήθηκε ένα σύμπλεγμα container που διατάσεται σε δύο επίπεδα για να εξυπηρετηθούν οι λοιπές ανάγκες του διοικητικού προσωπικού. Με τέτοιο τρόπο που να εξασφαλίζει την καλύτερη δυνατή οπτική επαφή με τον χώρο παραγωγής.
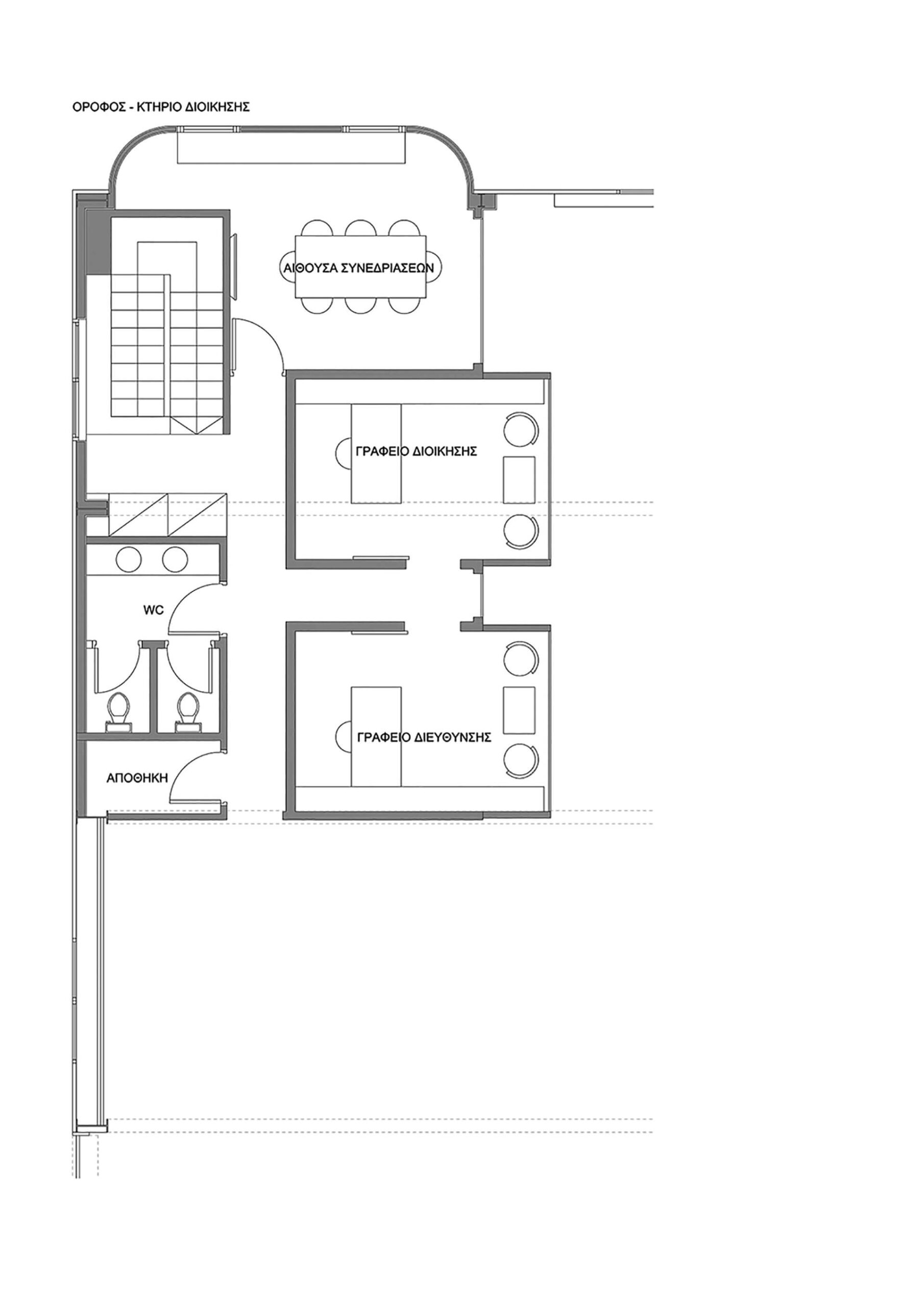
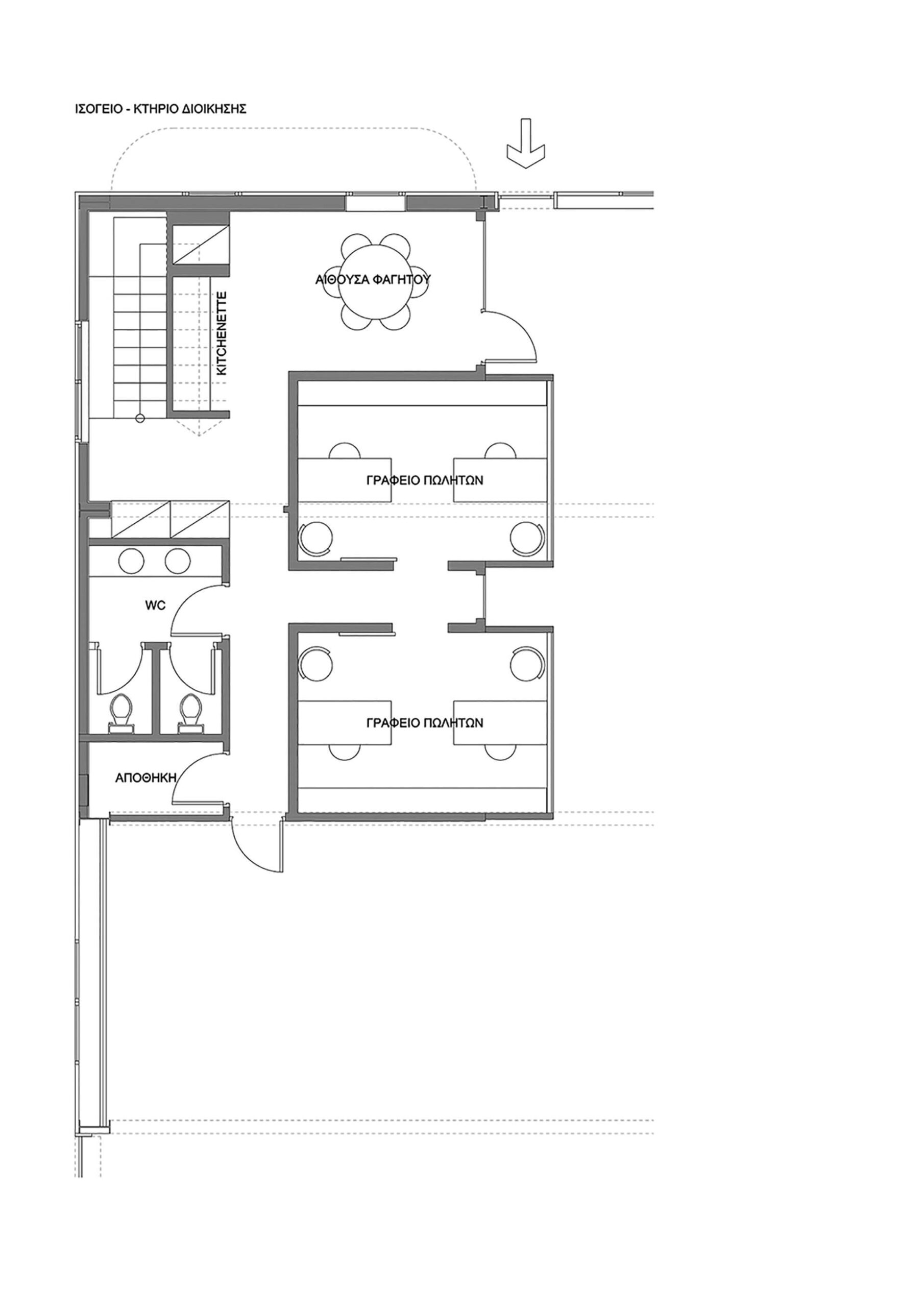
Στο ισόγειο του ανατολικού συμπλέγματος χωροθετούνται δύο γραφεία πωλητών, αίθουσα φαγητού, wc για το προσωπικό και αποθήκευση. Στον όροφο, δύο γραφεία, αίθουσα συνεδριάσεων και παρουσιάσεων, καθώς επίσης και αποθηκευτικός χώρος. Η πρόσβαση στα γραφεία γίνεται από δύο αντιδιαμετρικές εισόδους και τα δύο επίπεδα επικοινωνούν μεταξύ τους με εσωτερική μεταλλική σκάλα.


Υλικά & φωτισμός
Η παλέτα υλικών αποτελείται από μέταλλο, ξύλο και γυαλί, τα οποία χρησιμοποιούνται συχνά στη βιομηχανία. Οι μεταλλικές και γυάλινες επιφάνειες δημιουργούν τους όγκους, ενώ οι ξύλινες σε δάπεδα και έπιπλα συμπληρώνουν την κατασκευή. Οι χρωματικοί συνδυασμοί του λευκού και του γκρι εξωτερικά αναδεικνύουν τις ξύλινες επενδύσεις των δαπέδων και των επίπλων εσωτερικά.
Ο γραμμικός φωτισμός σε απόχρωση θερμού λευκού ακολουθεί τις ορθογώνιες επιφάνειες των container. Τα container είναι ένας σύγχρονος τρόπος δημιουργίας χώρων εργασίας σε εργοτάξια που χρειάζονται άμεση επαφή με την παραγωγική διαδικασία. Με την κατάλληλη διάταξή τους, δημιουργούνται οι συνθήκες για την επιθυμητή ροή εργασιών και ταυτόχρονα προσφέρεται η δυνατότητα επέκτασής τους για την κάλυψη των μελλοντικών αναγκών μιας εταιρείας, χωρίς να αλλοιώνεται ο σχεδιασμός.






