Ήσυχος μινιμαλισμός
Το διαμέρισμα βρίσκεται σε συγκρότημα κατοικιών στο Χαλάνδρι, αποτελούμενο από δύο πανομοιότυπα κτίρια με κοινόχρηστο πολυλειτουργικό χώρο στο ισόγειο, σχεδιασμένο από τον αρχιτέκτονα Ιωάννη Βικέλα το 1972. Παρότι ο εσωτερικός του χώρος αναδιαμορφώθηκε, η σύνθεση διατήρησε την φιλοσοφία της αρχικής κάτοψης.
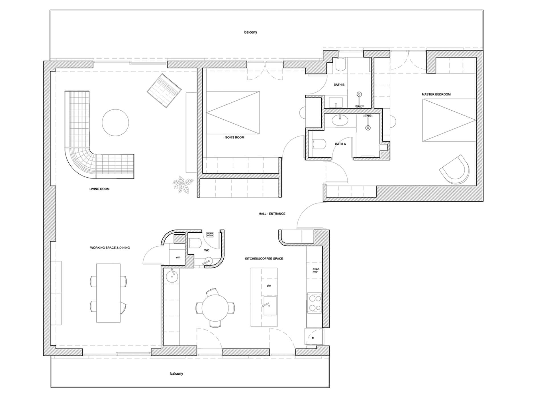
Στρατηγική ανακαίνισης
Για να ανταποκριθεί στις σύγχρονες ανάγκες των ιδιοκτητών, αφαιρέθηκαν τα περισσότερα εσωτερικά χωρίσματα και αντικαταστάθηκαν με νέα. Ωστόσο, ο σχεδιασμός επιδίωξε να διατηρήσει τη λογική της αρχικής διάταξης. Ο πυρήνας του διαμερίσματος παραμένει ο κεντρικός διάδρομος που συνδέει την είσοδο με το καθιστικό και την τραπεζαρία, ενώ οι υπόλοιποι χώροι οργανώνονται συμμετρικά εκατέρωθεν αυτού. Τα υπνοδωμάτια και το μπάνιο βρίσκονται στη βόρεια πλευρά, ενώ η κουζίνα, το WC και ο βοηθητικός χώρος τοποθετούνται στη νότια.
Ο υφιστάμενος διάδρομος στένεψε ελαφρώς και μετατράπηκε σε χωλ, με τον επιπλέον χώρο να αξιοποιείται για τη δημιουργία αποθηκευτικών επιφανειών, εντοιχισμένων ντουλαπών και επίπλων εισόδου με ενσωματωμένο κάθισμα, καθώς και για τη χωροθέτηση ενός WC. Στη νότια πλευρά, ο πρώην βοηθητικός χώρος αφαιρέθηκε ώστε να επεκταθεί η κουζίνα, δημιουργώντας περιοχή για καφέ και μικρό τραπέζι. Η ζώνη των υπνοδωματίων επανασχεδιάστηκε ώστε κάθε δωμάτιο να διαθέτει το δικό του μπάνιο, εντοιχισμένες ντουλάπες και χώρο εργασίας ή τουαλέτα μακιγιάζ.

Χωρική οργάνωση & φωτισμός
Ένα από τα μεγαλύτερα πλεονεκτήματα του διαμερίσματος είναι η αίσθηση ευρυχωρίας και φωτεινότητας. Οι χώροι καθιστικού και τραπεζαρίας είναι ανοιχτοί και φωτεινοί, με διπλό προσανατολισμό –βόρειο και νότιο– και μπαλκόνια και στις δύο όψεις που ενισχύουν τον φυσικό αερισμό. Η κουζίνα, λουσμένη από το νότιο φως, αποτελεί το πρώτο χώρο που αντικρίζει κανείς με την είσοδο, καθώς ανοίγεται προς τον διάδρομο. Αντίθετα, ένα μικρό ενδιάμεσο χωλ διαχωρίζει τα υπνοδωμάτια από τους κοινόχρηστους χώρους, προσφέροντας ιδιωτικότητα και ηρεμία.

Υλικά & ειδικές κατασκευές
Η αισθητική προσέγγιση βασίστηκε σε μια ήρεμη, μινιμαλιστική λογική, με έμφαση στην καθαρότητα των γραμμών και τη συνέπεια της υλικής παλέτας. Οι εντοιχισμένες ντουλάπες, οι κρυφές πόρτες και τα ξυλουργικά στοιχεία διαμορφώθηκαν στην ίδια υπόλευκη απόχρωση με τους τοίχους, δημιουργώντας μια ενιαία και ομοιογενή εικόνα. Το ξύλο δρυός χρησιμοποιήθηκε επιλεκτικά σε στοιχεία που επιδιώκονταν να αναδειχθούν -όπως η νησίδα και το bar της κουζίνας, τα έπιπλα εισόδου και η κύρια πόρτα- προσδίδοντας θερμότητα και υφή.
Το δάπεδο του διαμερίσματος, εκτός από τα μπάνια, καλύφθηκε με ανοιχτόχρωμο laminate δρυός, ενοποιώντας οπτικά τους χώρους. Στην κουζίνα, το μπεζ χαλαζιακό υλικό συμπληρώνει την γήινη παλέτα, ενώ στη σουίτα του κυρίως υπνοδωματίου το ύφος αυτό συνεχίζεται με πλακίδια σε απόχρωση τραβερτίνης. Το δεύτερο υπνοδωμάτιο διαφοροποιείται με έντονα μπλε στοιχεία τόσο στα ξυλουργικά όσο και στο μπάνιο. Υαλότουβλα χρησιμοποιήθηκαν στα μπάνια και το WC, επιτρέποντας στο φυσικό φως να διαχέεται σε αυτούς τους εσωτερικούς χώρους χωρίς παράθυρα. Τέλος, οι καμπύλοι τοίχοι που αντικατέστησαν τις ευθείες γραμμές προσδίδουν μια πιο απαλή αισθητική και ενισχύουν την αίσθηση ηρεμίας και συνοχής σε όλο το διαμέρισμα.






