Historical continuity
The traditional guesthouse occupies one of the most iconic buildings in the Old Town of Chania, dating back to the late 16th or early 17th century. The structure has been meticulously restored to preserve and showcase its historical character. Distinguished by the original stone columns on its façade, Aisha exudes a unique charm, specifically a refined blend of architectural influences that narrates the rich history of the area.
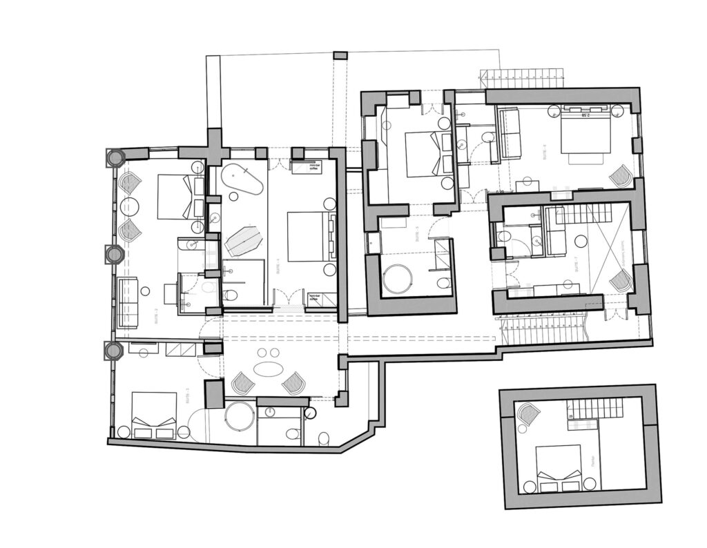
Functional Layout
The hotel features seven suites, five on the ground floor and two on the upper level, each named after the original function of the space in the historic building. The new layout embraces natural materials such as stone, wood, marble, and metal, while an earthy, neutral palette ensures a sense of warmth and luminosity. The design philosophy is rooted in the harmonious coexistence of old and new, aiming to evoke a subtle sense of nostalgia while offering contemporary comfort and elegance.

Adaptive Reuse Strategy
In keeping with this vision, several materials discovered on-site were carefully restored and repurposed, including the traditional cement tiles of the courtyard and a marble sink transformed into a washbasin. Original features, such as the wooden tsatmas (partition wall) along the first-floor corridor, the old fireplace in the “Fournos” suite, and the stone washing basin, also adapted into a washbasin, were reconstructed and preserved in their authentic form. The restoration process was carried out in close collaboration with local craftsmen, whose artistry and technical knowledge played a vital role in reviving the building’s historic essence.

Design Philosophy
The overall design strikes a delicate balance between contrasts, creating an atmosphere that feels simultaneously warm, authentic, and inviting. Every detail, from furniture and materials to decorative accents, has been thoughtfully selected to ensure a cohesive spatial narrative that encourages relaxation and a connection to the past. The intention behind Aisha Hotel is to offer guests a truly distinctive stay, immersed in the timeless beauty and tradition of Chania’s Old Town.






