Domestic origin
The new Daras Dental clinic in Piraeus challenges the conventions of a typical clinical environment, redefining it as a place of healing rather than discomfort. Bright surfaces, warm wooden tones, semi-transparent materials, and domestic details come together to soothe patients’ anxiety and create a more welcoming atmosphere.
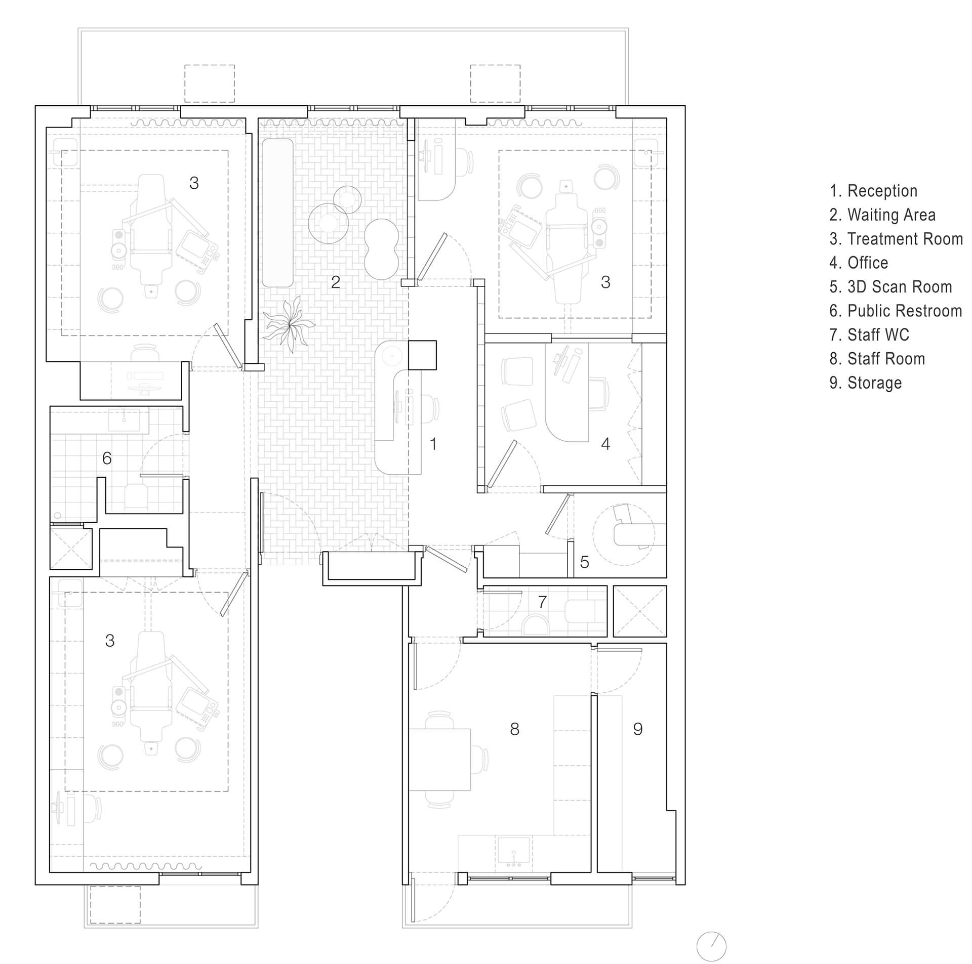
Spatial Organization
Housed in a 1960s apartment building near the port, the 110 m² residence is transformed into a multi-dental clinic for three dentists and their staff. The original living–dining area is removed and replaced by a timber-and-glass module made of channel glass, accommodating the reception, office, CT scan room, waiting area, and the main treatment room. Two additional treatment rooms, the restrooms, and staff areas are organized within the apartment’s existing partitions.

Materials & Construction
The clinic’s identity emerges from the combination of wood and glass, blending the typologies of clinic and home. Rather than concealing the conversion, the design embraces the space’s domestic origins, fostering a sense of comfort. Contemporary details subtly reference the modernism of the 1960s – the decade in which the building was constructed.

Form & Lighting Design
Piraeus itself – the busiest passenger port in Europe and a gateway to the Aegean Sea – also served as a source of inspiration. Luminous glazed surfaces evoke the depths of the sea, while circular openings and finely crafted joinery recall the craftsmanship of yachts. A discreet mint-green floor bridges the clinical and nautical references. Above all, light animates the space: luminous ceilings provide a clean, fresh counterpoint to the more domestic service areas.






