Domestic landscape
The redesign of this compact urban apartment emerged through close and meaningful collaboration with its users, aiming to create an environment that responds to contemporary needs for living, working, and everyday flexibility. The project is grounded in the idea that spatial quality is not determined by size, but by clarity of organization, the flow of natural light, and the conscious integration of functions.
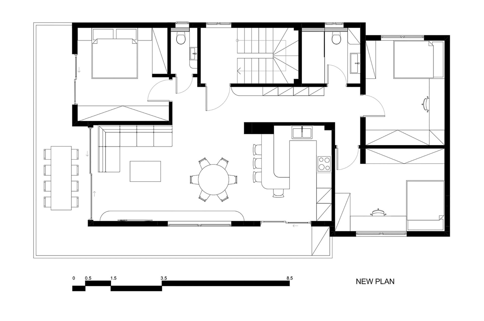
Spatial Organization
The original layout was reconsidered through a process of spatial reprogramming, with the primary strategy focusing on the creation of a unified open-plan environment. The selective removal of walls allowed new visual connections and spatial relationships to emerge, enhancing both the penetration of natural light and the continuity of movement throughout the apartment.
A key element of the composition is the custom-designed opening between the entrance and the dining area. This architectural gesture functions simultaneously as a light filter, a transitional threshold, and a spatial organizer, introducing clarity to the spatial sequence while reinforcing the perception of depth within the interior.

Material Palette
The material identity of the project is defined through a restrained yet expressive palette of natural materials. Wood and marble are combined in specially designed built-in constructions that accommodate storage, work surfaces, and everyday functions.
Furniture is approached as an architectural component rather than as independent objects. In this way, it becomes organically integrated into the spatial composition, reinforcing the sense of coherence and visual clarity within the interior. These integrated solutions enable the efficient use of space without visually overwhelming the environment.

Custom Elements
Particular emphasis was placed on flexibility and multifunctionality. Office furniture, storage units, and adaptable surfaces are carefully integrated so that the space can easily transform to accommodate different scenarios of use – from working from home to everyday living and social gatherings.
The final result is a bright and balanced domestic environment, where the clarity of the design, the consistency of the material palette, and the careful detailing transform a small apartment into a flexible and contemporary living landscape. Through targeted architectural interventions, the project demonstrates how compact living can be reimagined as a refined and cohesive spatial experience.






