Λευκός περίβολος
Η κατοικία βρίσκεται στη Λακατάμια, ένα προάστιο στα περίχωρα της Λευκωσίας. Από τα πρώτα στάδια του σχεδιασμού, τέθηκαν ορισμένα ουσιώδη ζητήματα που καθόρισαν τις βασικές αρχές της αρχιτεκτονικής πρότασης.
Φιλοσοφία σχεδιασμού
Πρώτον, η ανάγκη για διακριτική ιδιωτικότητα, η οποία όμως να μη στρέφει την πλάτη στον αστικό ιστό, αλλά να διατηρεί μια στοιχειώδη ευαισθησία προς αυτόν. Δεύτερον, ζητούμενο αποτέλεσε η καλλιέργεια μιας άμεσης, σχεδόν απτικής σχέσης με την “ιδιωτική” φύση. Επιπλέον, διατυπώθηκε η επιθυμία για αφθονία φυσικού φωτός σε όλους τους χώρους του σπιτιού, ενώ καθοριστική υπήρξε και η πρόβλεψη για τη φιλοξενία της συλλογής έργων τέχνης των ιδιοκτητών, η οποία απαιτούσε κατάλληλες συνθήκες ανάδειξης.

Αρχιτεκτονικές χειρονομίες
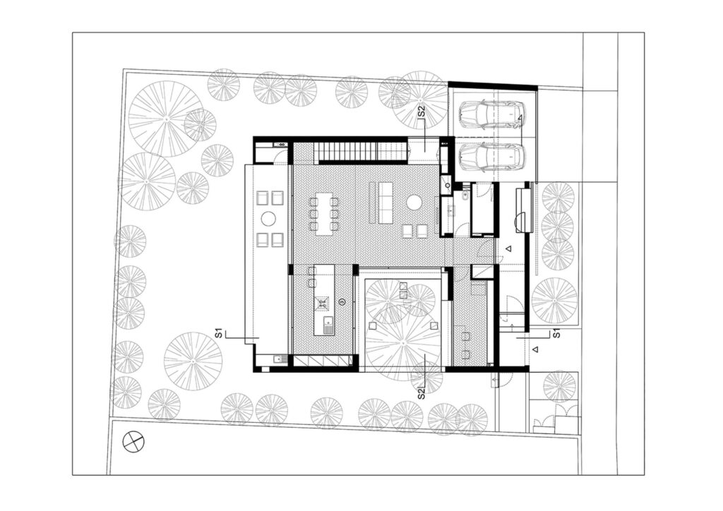
Για την επίτευξη αυτών των στόχων, ο σχεδιασμός ενσωμάτωσε δύο φαινομενικά αντικρουόμενες αρχιτεκτονικές αναφορές, επιχειρώντας μια σύνθεση ανάμεσά τους. Αφενός, αξιοποιήθηκε το στοιχείο του “περιβόλου” -του προστατευτικού τοίχου που περιβάλλει την παραδοσιακή κυπριακή κατοικία- ο οποίος διασφαλίζει την ιδιωτικότητα και ταυτόχρονα συγκροτεί έναν εσωτερικό υπαίθριο χώρο. Συνήθως αυτός λαμβάνει τη μορφή ενός εσώκλειστου κήπου, ενός “πνεύμονα” εντός της κατοικίας.
Αφετέρου, αντλήθηκαν αναφορές από την κατά Loos μοντερνικότητα και ειδικότερα από τη χαρακτηριστική λευκότητα και “καθαρότητα” των όγκων της, που λειτουργούν τόσο ως ουδέτερος καμβάς, όσο και ως μέσα ενίσχυσης της διάχυσης του φυσικού φωτός στον εσωτερικό χώρο. Το τελικό αποτέλεσμα είναι ένας λευκός κύβος που αρθρώνεται μέσω μιας ακολουθίας ομόκεντρων τοίχων. Οι τοίχοι αυτοί παρατείνουν την εμπειρία της εισόδου και κατευθύνουν σταδιακά τον επισκέπτη προς τον εσωτερικό πυρήνα της κατοικίας.

Φυσικά στοιχεία & φωτισμός
Παράλληλα, επιτρέπουν την ύπαρξη ενός κεντρικού κενού, ενός φωτεινού ανοίγματος γεμάτου έντονη βλάστηση. Αυτός ο “πυρηνικός κήπος” αποτελεί σαφή αναφορά στην τοπική αρχιτεκτονική παράδοση και λειτουργεί ως ζωτικός χώρος συγκέντρωσης και αναφοράς για όλες τις καθημερινές δραστηριότητες της οικογένειας. Οι επιμέρους χώροι ανοίγονται προς αυτόν, καθώς το κενό καθίσταται η καρδιά του σπιτιού -ένα στοιχείο φυσικό και ταυτόχρονα αρχιτεκτονικό, που καθορίζει τις θεάσεις, το φως και τις μεταξύ των χώρων σχέσεις.






