Concrete frame
An existing concrete structure forms the point of departure for the project. Such frames became a familiar presence in the Greek landscape following a regulation that allowed building permits to remain valid if only the structural skeleton was constructed. By the time the project began, this concrete frame had stood unfinished for more than a decade. Its reuse was a deliberate choice, directly addressing issues of sustainability, economy, and legislation – concerns that are particularly pressing in the context of overtourism in the Cycladic islands.
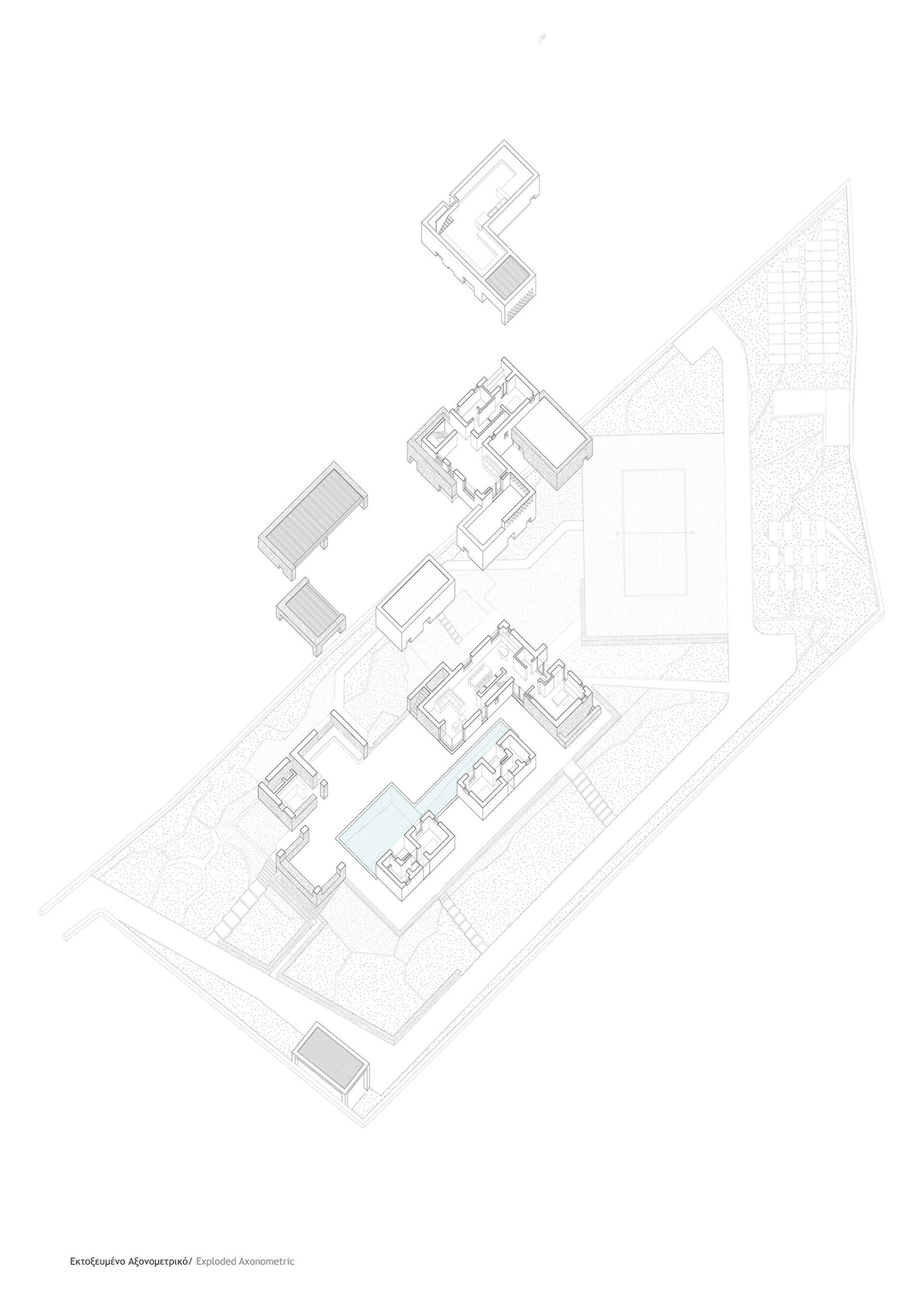
Reuse Strategy
The intervention was based on a strategy of subtraction and addition using elementary geometries. Only the necessary portions of the existing structure were carefully removed, while new L-shaped and rectangular volumes were introduced to establish formal and programmatic clarity. This measured approach produced a solution that both transcended the limitations imposed by the site’s past and navigated its complex regulatory framework.
The plot is characterized by its flat terrain and proximity to the port and village. Surrounded by neighboring developments on all sides except the western edge – which is expected to remain undeveloped due to its protected forestry status – the site lacks the extroverted qualities typical of a seaside plot. As a result, the house is conceived as a balance between introversion and openness.

Architecture: ARP – Architecture Research Practice Photography: Giulio Ghirardi
Functional Layout
At ground level, volumes are arranged around a central pool to form an inner courtyard, mediating between privacy and openness toward anticipated or existing construction. This configuration moves away from a conventional sequence of enclosed rooms, proposing instead a communal mode of living in which water becomes the focal point of daily life.
On the upper floor, the living area and master suite are oriented toward both the active port and the island’s northern landscape. A large opening frames views of the port, allowing daily activity to remain visually present. An external staircase provides independent access to the upper level and the roof, where unobstructed views extend across the surroundings. With its restrained geometry, the house emerges quietly, maintaining a measured dialogue with its context.

Architecture: ARP – Architecture Research Practice
Sustainable Design
Beyond standard strategies such as cross-ventilation and high-performance thermal insulation, a skylight positioned above the interior staircase transforms it into a passive cooling tower. Photovoltaic panels generate sufficient energy for autonomous operation, reducing reliance on the local grid. Native trees and vegetation, selected for their low water demand, help filter views toward neighboring hotel facilities, ensuring privacy while acknowledging the realities of building within an existing village fabric.

Architecture: ARP – Architecture Research Practice Photography: Giulio Ghirardi





