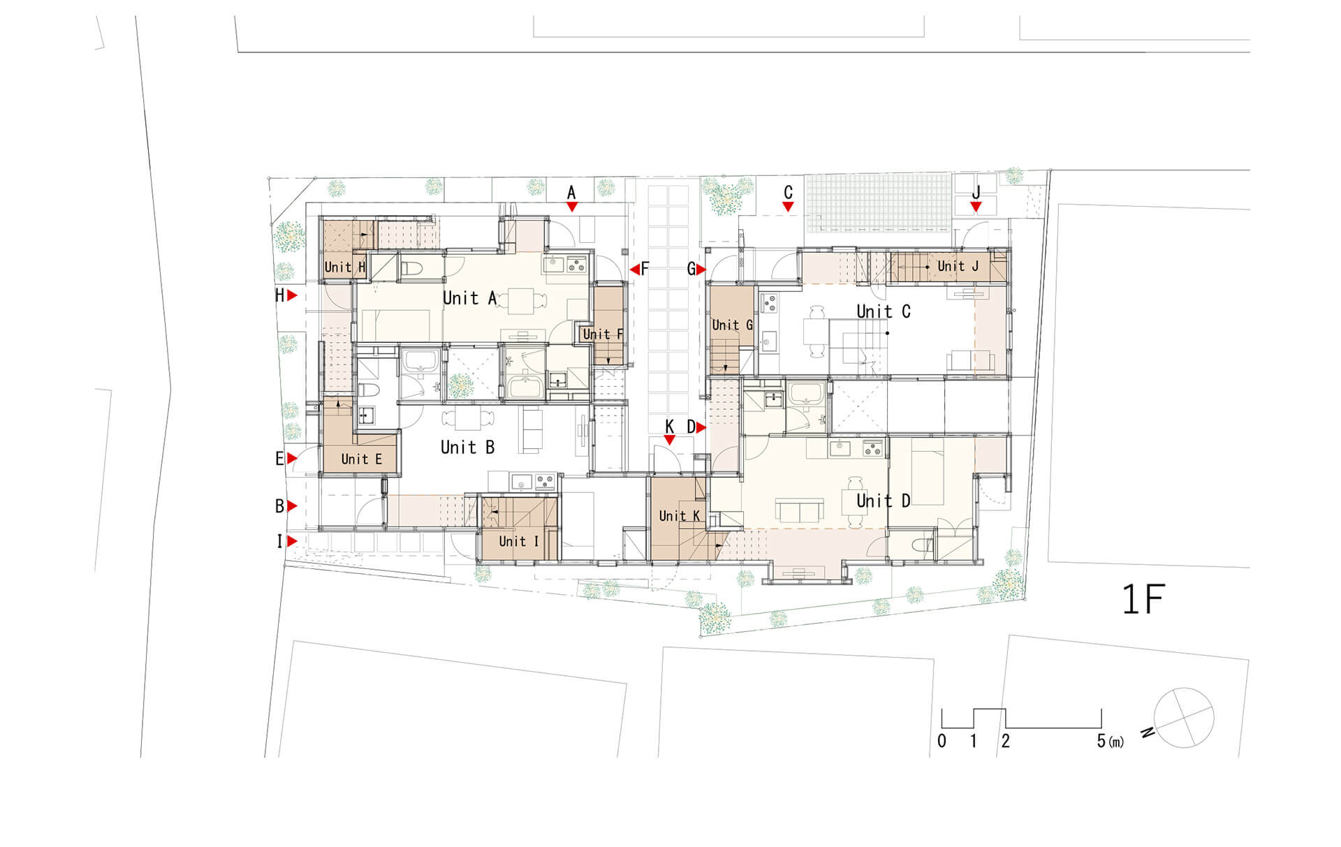
Multilayered structure
The residential complex is comprised of eleven units organized around a system of nested spatial layers. At its core lies the “Void Core,” acting as a conduit for light and air. This central element is surrounded by the primary living “Space,” which is further wrapped by the “Buffer” – a zone formed by circulation corridors, staircases, and storage. Enclosing the system is the “Case,” the outer shell that defines and protects the living areas.
Context Integration
The site is located adjacent to a railway line within a densely built residential neighborhood. As a result, the design addresses the need for enhanced privacy and noise mitigation, while ensuring ample daylight and natural ventilation. In contrast to conventional rental housing – often characterized by repetitive, standardized layouts that overlook site-specific conditions – this project promotes spatial individuality, aesthetic diversity, and adaptability to context.

Functional Layout
The primary living areas, including the living, dining, and kitchen spaces as well as the bedrooms, are enveloped by the “Buffer.” This intermediate layer, composed of corridors, staircases, and storage zones, mediates between private interiors and external conditions. In select units, the living spaces extend outward, establishing subtle visual and spatial connections with the surrounding environment. Bathrooms are strategically positioned between adjacent units, forming an additional layer of acoustic and visual separation that enhances privacy.
At the center of the building, the “Void Core” channels light and airflow deep into the complex, improving environmental performance while shaping the overall massing. By dividing the project into two volumes, a lane-like passage is created within the site, allowing even centrally located units – typically prone to enclosure – to maintain a relationship with the outdoors. This volumetric articulation, together with canopies that define the ground and upper levels, mitigates the perceived scale of the complex and ensures a more harmonious integration with the surrounding low-rise context.

Staircase Design
Rather than functioning solely as circulation elements, the staircases are conceived as spatial devices that modulate external influences, contributing to improved acoustic, luminous, and thermal comfort. In the maisonette units occupying the third floor, the staircases extend beyond their conventional linear role. They expand at intermediate points to form annex-like spaces that complement the main living areas. When viewed from the exterior, this strategy generates a distinctive articulation of projecting walls, lending visual lightness and dynamism to the overall volume.






