Urban recovery
The architectural proposal for the adaptive reuse of the iconic Mínion department store in the center of Athens posed a significant challenge, as the restoration of its extensive, abandoned shell became an opportunity for a design approach with a clear narrative and morphological intent.
Design Philosophy
The central design idea interprets the historical layering of the urban block, shaped over time by the gradual consolidation of different properties during its operation as a department store. The selection of a three-color palette for the façade’s functions symbolically, subtly alluding to the composition of the individual buildings. In this way, the project establishes a dialogue with the surrounding urban fabric, expressed through a distinctly rationalist and understated rhythm.
Particular emphasis was placed on redesigning the base of the building. Through a pronounced shift in architectural language and typology, the arcades along the street frontage were shaped with arches, evoking a more commercial and urban Athens of the past. The varying geometry of the openings responds to the existing structural framework, preserving the building’s constructional identity.

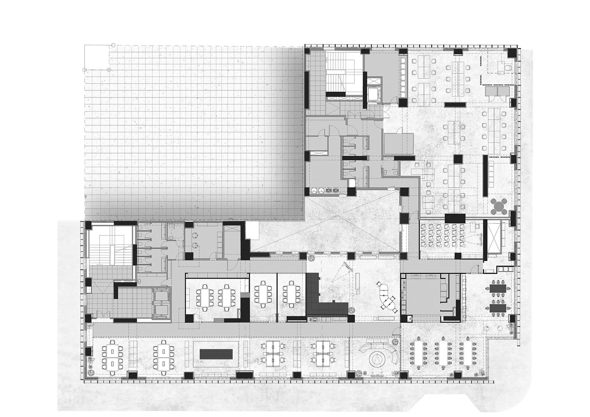
Functional Organization
The new “double” envelope consists of two layers: the inner one is organized through the rhythm of the openings to maximize natural daylight, while the outer one is formed by a grid of colored metal shading panels. The composition draws references from Athenian rationalism, modernism, and the city’s neoclassical heritage, adding depth and a three-dimensional expression. The engraved “Mínion” logo, carved into the marble cladding, marks the building’s renewed identity with respect for its past.

Bioclimatic Design
Bioclimatic principles inform the entire project. More than 97% of the load-bearing structure was preserved, reducing demolition and the embodied carbon footprint. Automation and management systems for lighting and climate control were implemented, achieving significant energy savings, while the use of low-emission materials enhances the building’s sustainable character. The green roof, planted with Mediterranean vegetation, improves the local microclimate. Now accommodating both commercial and office uses, and achieving an excellent environmental performance certified with LEED Gold, Mínion is reintroduced to the city not as a memory, but as an active, sustainable chapter of its urban future.






