Δυναμικές γεωμετρίες
Σε οικόπεδο στην ανατολική Πάφο, η κατοικία αυτή σχεδιάζεται με στόχο την ισορροπία ανάμεσα στη γεωμετρία, τη λειτουργικότητα και το φυσικό φως. Τρεις πρισματικοί όγκοι διασταυρώνονται σε οριζόντια και κάθετη διάταξη, συνθέτοντας μια δυναμική αρχιτεκτονική μορφή όπου τα κενά και τα πλήρη στοιχεία καθορίζουν τη ροή των κινήσεων και τη σχέση ανάμεσα στο μέσα και το έξω.
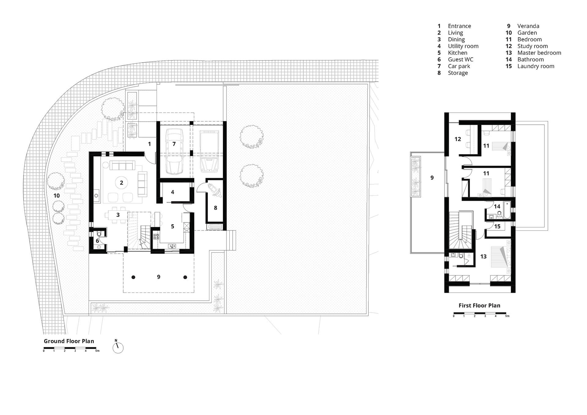
Λειτουργική Οργάνωση
Ο ισόγειος όγκος, προσανατολισμένος κατά τον άξονα βορρά-νότου, φιλοξενεί τους κοινόχρηστους χώρους -καθιστικό, τραπεζαρία, κουζίνα και βοηθητικό δωμάτιο. Μεγάλες γυάλινες επιφάνειες προς τον νότο επιτρέπουν στο φυσικό φως να εισχωρεί βαθιά στον χώρο, καταργώντας τα όρια ανάμεσα στο εσωτερικό και το εξωτερικό, και ενισχύοντας τη σύνδεση με τη βεράντα και τον κήπο. Ο όγκος αυτός συνδέεται οργανικά με τον στεγασμένο χώρο στάθμευσης και την αποθήκη, προσφέροντας υψηλή λειτουργικότητα και πρακτικότητα.
Ο επιμήκης όγκος του πρώτου ορόφου λειτουργεί ως ήσυχο και προστατευμένο καταφύγιο. Η κεντρική του τοποθέτηση ενισχύει τη συμμετρία του κτιρίου, ενώ παράλληλα εξασφαλίζει ιδιωτικότητα. Περιλαμβάνει τρία υπνοδωμάτια, ένα κοινόχρηστο μπάνιο, χώρο πλυντηρίου και γραφείο.

Ειδικές Κατασκευές
Ένα γλυπτικό, καμπύλο μεταλλικό κλιμακοστάσιο συνδέει τους δύο ορόφους, προσδίδοντας μια οργανική αίσθηση που έρχεται σε αντίθεση με τη γραμμική γεωμετρία των όγκων, ελαφραίνοντας οπτικά το σύνολο. Το παιχνίδι φωτός και σκιάς αποτελεί βασικό στοιχείο της σύνθεσης, μεταβάλλοντας διαρκώς την ατμόσφαιρα. Οι γεωμετρικές μορφές ρίχνουν δυναμικές σκιές, ενώ οι αντανακλάσεις του γυαλιού εμπλουτίζουν τον διάλογο μεταξύ εσωτερικού και εξωτερικού χώρου.

Παλέτα υλικών
Η κατοικία εκφράζει μια σύγχρονη εκδοχή της μεσογειακής αρχιτεκτονικής, αξιοποιώντας υλικά της περιοχής με φινέτσα και σεβασμό στο τοπίο. Η πέτρα Καβάλας, το φυσικό ξύλο, οι λευκές επιχρίσεις και το γυαλί συνθέτουν μια υλική παλέτα που εναρμονίζεται με το φυσικό περιβάλλον. Το σπίτι μετατρέπεται έτσι σε έναν ζωντανό καμβά που επαναπροσδιορίζει την καθημερινότητα, εξελίσσεται μαζί με τους κατοίκους του και προσφέρει συνέχεια, ηρεμία και διαχρονικότητα.






