Simple aesthetic
Skrew is an all-day bar-restaurant designed for relaxation and socializing, serving as a favorite meeting point for its guests from morning until late at night. The owners’ desire for a fresh yet timeless space, housed within an existing industrial building, defined the overall design approach.
Design Philosophy
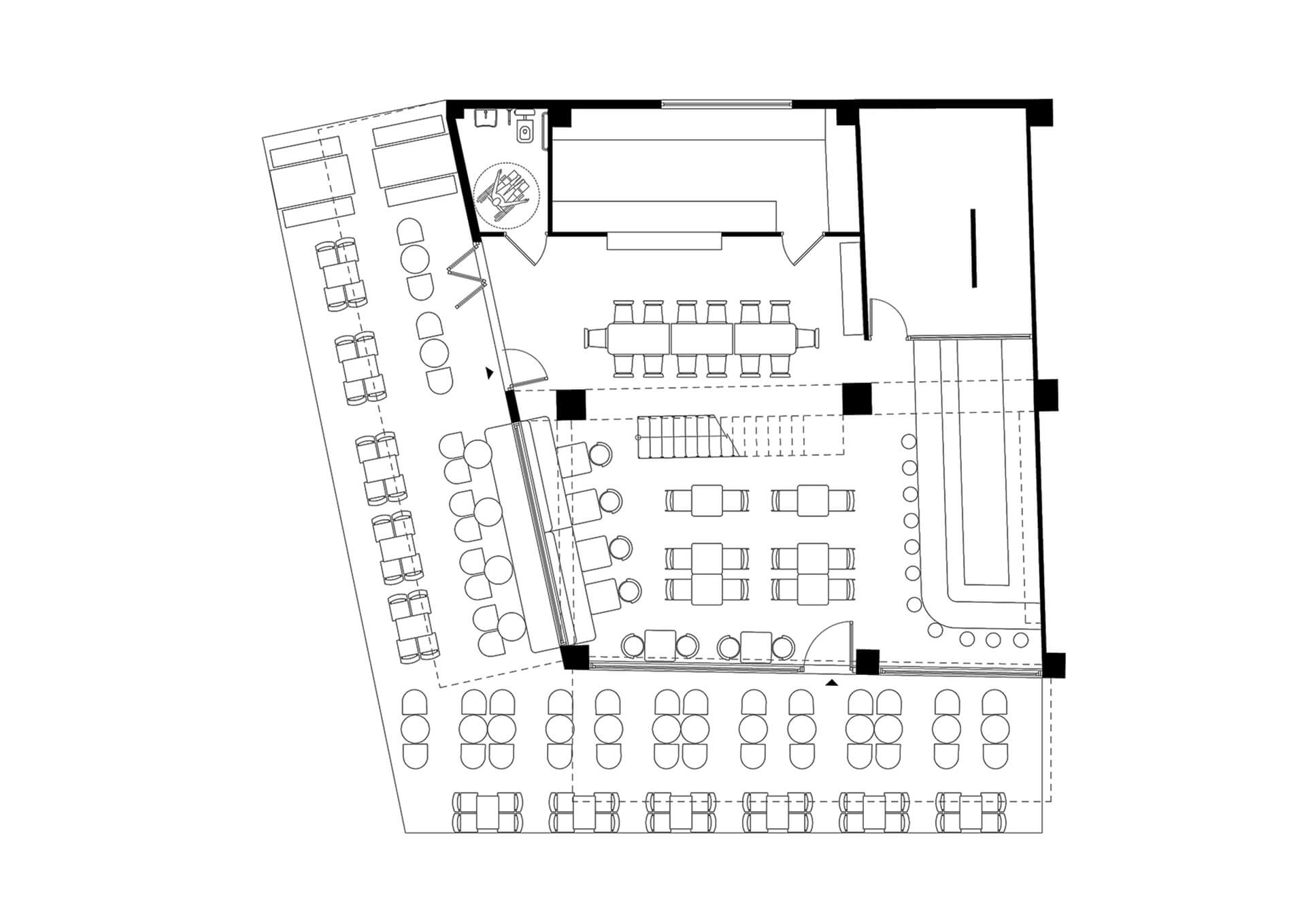
The interior preserves the restrained aesthetic of exposed concrete while incorporating distinctive features, such as a striking bar set against a 3.5-meter-high backdrop and a counter clad in tin. The dining area offers a variety of seating options, including banquettes paired with custom-designed marble tables and vintage chairs. At the rear, the open kitchen with its glass frontage adds vibrancy and a sense of interaction. The presence of plants, combined with a diverse selection of furniture and architectural elements, creates a layered experience, with different spatial qualities unfolding in every corner.

Spatial Layout
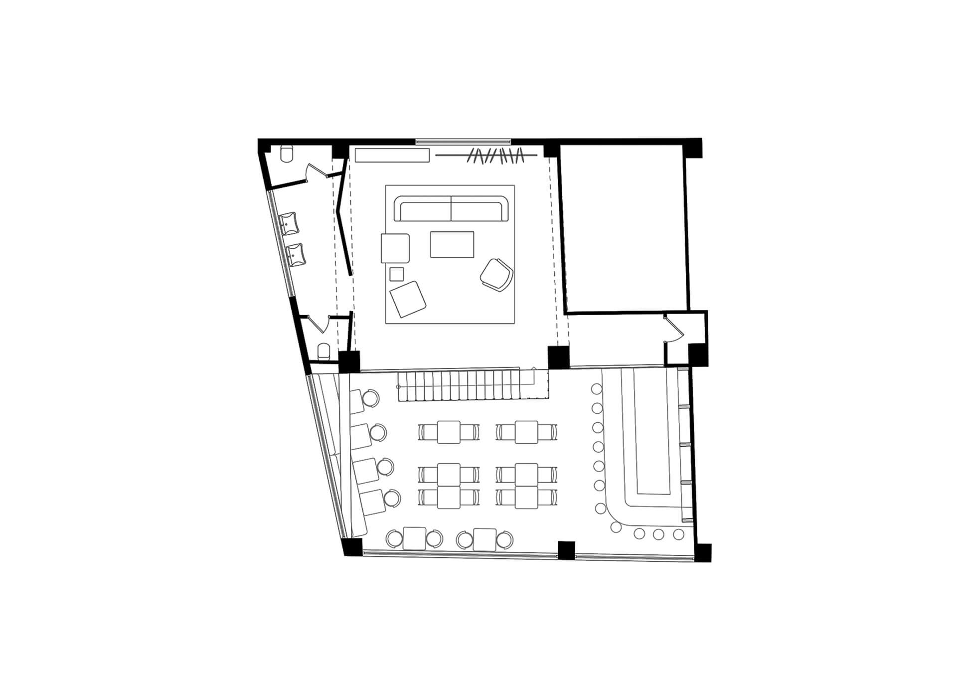
A key element of the restaurant is the sculptural metal staircase leading to the secluded mezzanine, which also functions as a display surface for wines. Its industrial character reinforces the identity of the building, while its bold color introduces an artistic accent within the otherwise neutral setting. The upper level accommodates a lounge area, ideal for working or reading during the day, as well as a retail corner featuring a curated selection of accessories and clothing.

Material Palette
The existing terrazzo flooring, with its three-color composition, lends a nostalgic touch to the space. Yellow leather details on the bar stools complement the overall color palette. The combination of diverse styles and textures -raw concrete, polished cement, glass blocks, and the leather-clad bar front- creates an atmospheric and dramatic setting. The final result is a two-level space that blends pop and classic culture, luxury and informality, quiet daytime moments and vibrant nightlife.






