Civic framework
In the early 2000s, ‘Paspoel,’ a neighbourhood in Tongeren, Belgium, was seen as a poorly designed and poorly maintained social housing area lacking a distinct identity. Residents felt isolated within their apartments, surrounded by an underutilized, park-like landscape that was unsafe. The development included 192 homes spread across three monolithic blocks that were nearing the end of their lifespan. Faced with the decision to demolish or renovate, the Flemish Ministry of Housing opted for demolition, aligning with our client’s goal to significantly enhance social equity and living conditions.
Site Challenges
Because the site held archaeological significance, development was restricted to the foundations of existing buildings and the adjacent basement parking. Despite these limitations, the proposal envisioned an pioneering reimagining: a collection of urban villas, terraces, and a revitalized public realm that would serve as a new civic framework for the community.
The design integrates residents’ natural movement across the site – from the northeast to the southwest – within a ‘grid-like’ spatial layout. This creates a series of interconnected ‘outdoor rooms’ that frame daily journeys and spontaneous interactions amongst neighbors. These outdoor spaces encourage community bonding, stewardship, and healthy living through areas designated for gathering, playing, and growing.

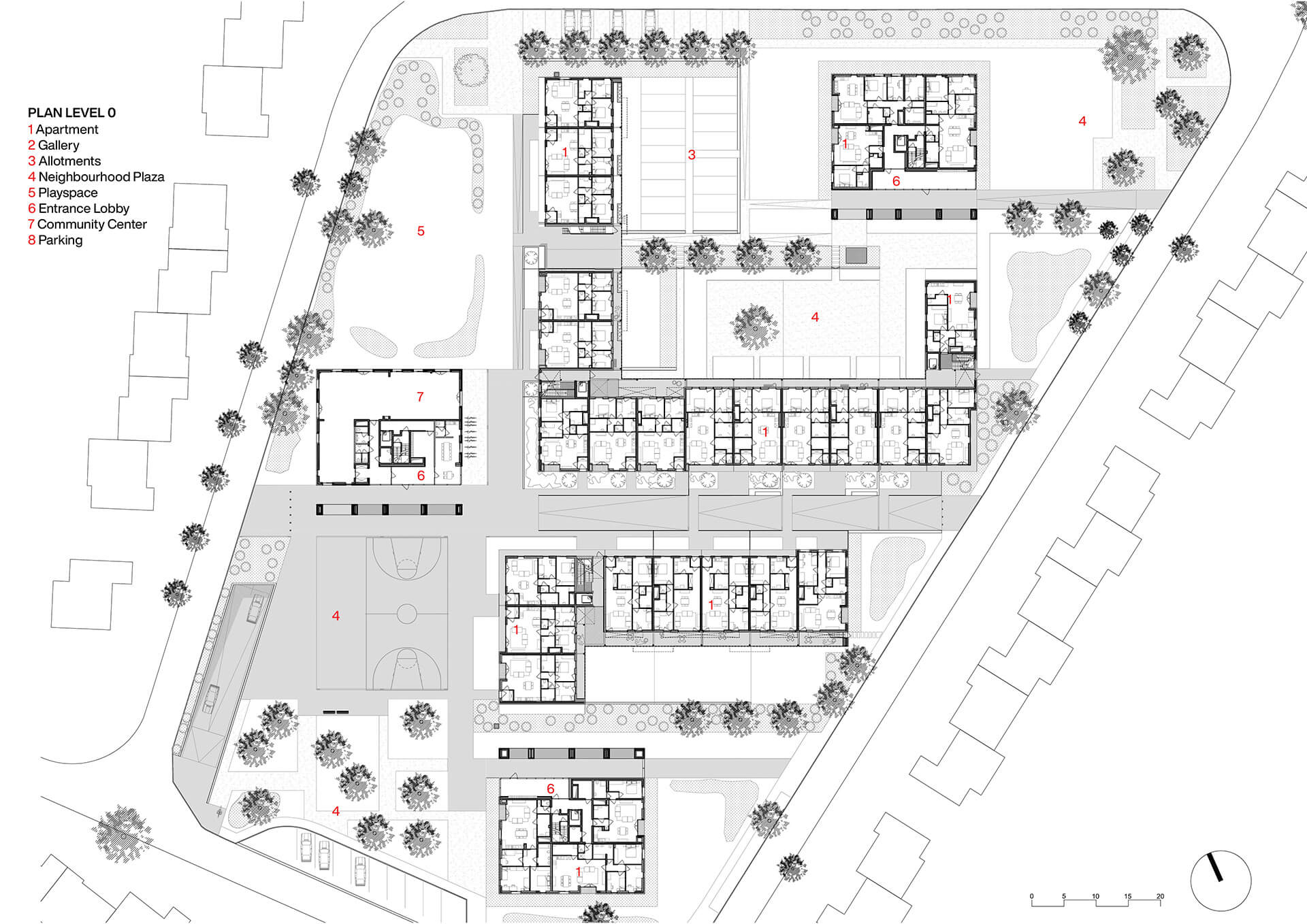
Functional Organization
The ground floors, framed by buildings ranging from three to eight stories, offer ample opportunities for social interaction. Terraces with front doors navigate the sloping terrain, while wide ‘galleries’ allow neighbors to connect while overlooking gardens. The broad entrances of the urban villas extend over public spaces, providing shelter, pathways, and seating. New community rooms at ground level serve as venues for meetings and local events. Landscaped areas cater to all ages, featuring basketball courts, formal play zones, community gardens, and sheltered lawns for informal recreation. Trees line key pathways, serving as shelters and defining three communal areas. A pedestrian street at the heart of the project, lively with front-door activity, supports outdoor pop-up events.

Construction Strategy
A crucial aspect of the project was ensuring residents could remain on site throughout the transformation. Due to limited buildable space, a complex phased construction plan was implemented over ten years. The basement parking permitted initial phases to be built between the old structures, facilitating a gradual process of demolition, construction, and resident relocation.
The “Caring Neighborhoods” initiative launched alongside construction fostered cooperation among residents, volunteers, associations, and professionals. Emphasizing livability and community involvement, this program brought services closer to residents.






