Fluid fields of knowledge
The proposal is grounded in a natural philosophy that understands design as the shaping of a unified, flowing field of knowledge, memory, and collectivity. Drawing inspiration from the idea of a “cultural structure” – those enduring spatial relationships that render a place unique – the approach acknowledges the historic building as an active participant in the continuous flow and renewal of local tradition. The metaphor of “communicating vessels” articulates precisely this ambition: an open system in which knowledge, conceived as a fluid, is distributed evenly, bringing the past into a creative dialogue with the present and the future.
Design Philosophy
The proposal focuses on the coexistence of the old and the new, employing imitation as a tool for architectural dialogue. Here, imitation is not understood as the faithful replication of the past, but as a mechanism for identifying those immutable architectural elements which, through a process of abstraction, can be incorporated into the new expression of the Karradeios extension. New and existing elements are orchestrated within an architecture of balance, reciprocity, and evolution.
Spaces are conceived as an open and porous system, where knowledge is not confined to enclosed rooms but diffuses through corridors, passages, and outdoor areas, encouraging spontaneous encounters and exchanges.
The neoclassical building, an authentic example of the characteristic urban residences in Chios, with influences from Smyrna, is conceived as a space of reception and public presence. Its restoration follows the principles of integrated conservation, respecting its historical identity while redefining it as an active public space within the everyday life of the University of the Aegean. The new extension emerges as a continuation and evolution of this framework, shaping a space that functions as a medium for physical, social, and intellectual cultivation.

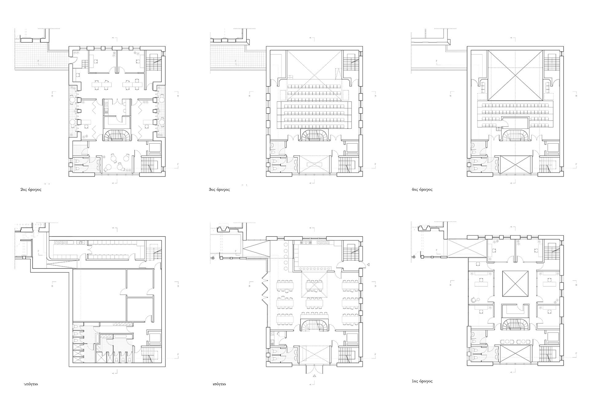
Functional Organization
The relationship between the two buildings is articulated through multiple strategies. They are connected by an internal ramp protected by a continuous glazed enclosure, as well as by a covered bridge (roof terrace) linking them at first-floor level. This configuration establishes functional continuity, allowing, for example, the student cafeteria to extend from the new building into the ground floor of the neoclassical structure (student lounge).
At the same time, the basement levels form a unified core of service and auxiliary spaces. The structural logic of the proposal further reinforces continuity: the lounge in the neoclassical building directly connects to the dining hall in the new extension, while the office spaces on the second floor of both buildings are linked via the existing veranda and its extension. Uses are mutually reinforced, forming a single, integrated functional ensemble.
With its monolithic form, the extension respects the polyphony of the urban environment while simultaneously establishing a relationship of morphological continuity with the neoclassical building through the abstract reinterpretation of its fundamental geometric and proportional principles. This continuity is traced in the deep, non-linear spatial relationships of the historic structure and in its morphological logic, which narrates a specific way of life.
Finally, the geometric system of nine squares that defines the plan of the existing building is employed as a compositional tool for the new extension, expanded and rotated to generate new geometries. Morphological elements such as verandas and semi-outdoor spaces reappear in an abstracted form. The new building’s double pitched roof, beyond reducing the perceived mass of the façade, draws upon morphological tradition and establishes a contemporary landmark connected to history.

Restoration Strategy & Materials
While the neoclassical building is restored with respect for its original materiality (wooden linings, wall paintings, fireplace), the material language of the extension draws inspiration from local tradition without replicating it. The main façade is clad with locally produced ceramic tiles, referencing the ceramic construction tradition of Chios. The flooring of the new building is conceived as a mosaic composed of aggregates and ceramic fragments sourced from demolished elements on the site and from the old building itself, symbolically embedding the memory of the past within the new and materially enacting the concept of “communicating vessels.”
Large openings – particularly on the southern façade of the extension and along the glazed connecting volume – ensure visual continuity between the buildings and the garden. The outdoor space functions as the unifying connective tissue of the complex, embodying the core natural philosophy as a means of cultivating community and place. Specifically, it preserves the maximum possible percentage of greenery, decisively shaping the form of the new extension, and reactivates water elements (well, historic cistern, stream) as a triple aquatic trace that improves the microclimate and reintroduces the memory of the site.






