Platonic solids
Cyprus Planetarium is composed of two buildings that house a Planetarium, exhibition zones, a conference center, an amphitheater–observatory, an astronomical observatory, a restaurant, and educational facilities. It is located in Episkopeio, in the Nicosia district, and stands as a landmark project for Cypriot society.
Design Philosophy
It is a pioneering complex that brings together high aesthetics, technology, sustainable development, economic viability, and social impact, contributing to research and innovation, academia, knowledge, and study. Access to the Planetarium is achieved through a transitional “threshold” and a route that passes between water features, planting, and light.
The composition of the project is based on Platonic solids such as the cube, the sphere, and the polyhedron. The design seeks to translate symbols into architectural choices: mystery, the unknown, and the universe are expressed through black, while white represents truth, purity, scientific thought, and the soul.

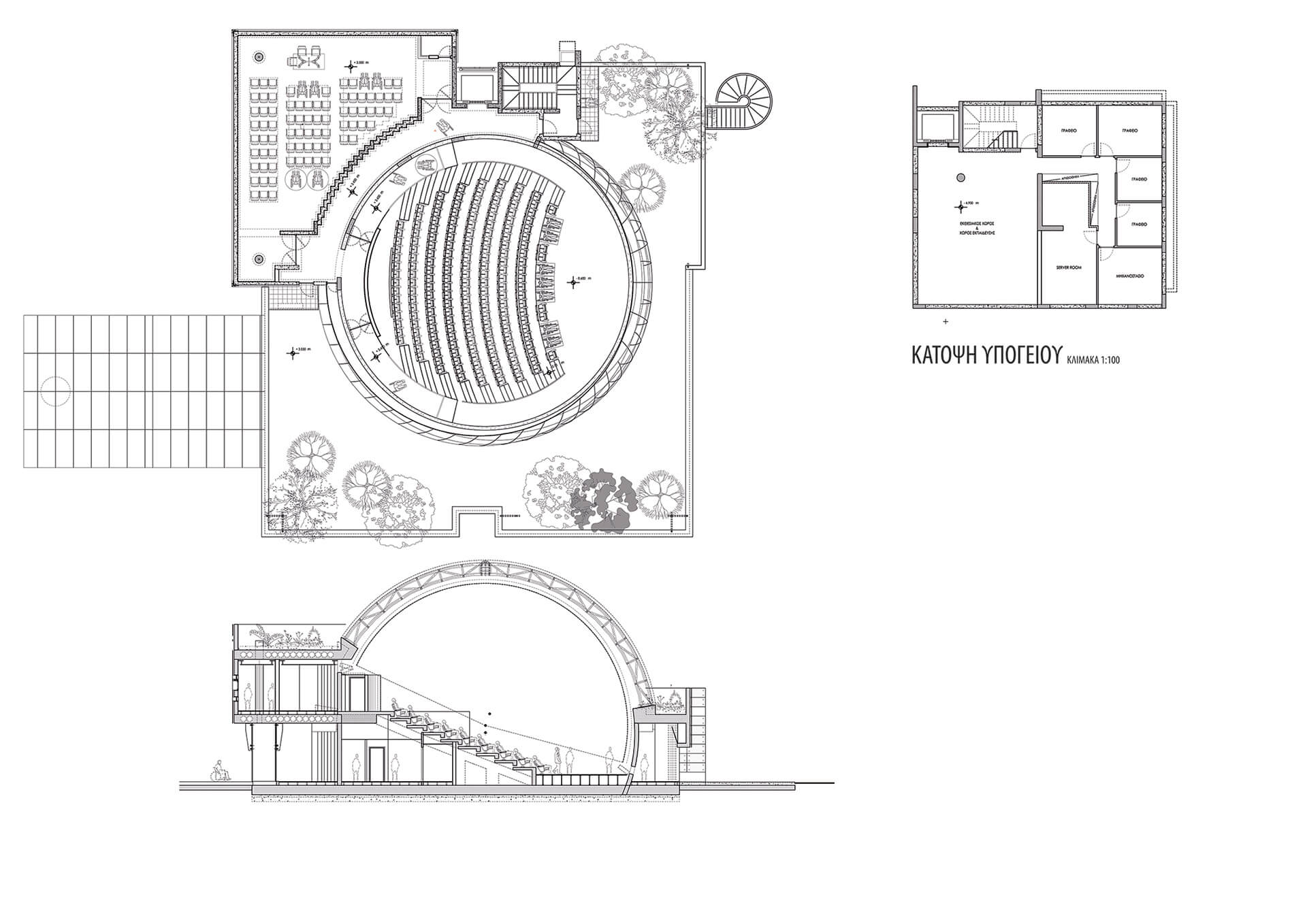
Functional Organization
The amphitheater building includes, on the ground floor, a restaurant, café, and sanitary facilities, while the upper level accommodates the amphitheater–observatory, ideal for outdoor music events and performances, as well as a state-of-the-art telescope and astronomical observatory.
The Planetarium building houses, on the ground floor, the planetarium hall with an 18-meter screen, 10 projectors, and 176 seats, a 360° VR room, a temporary exhibition space, a gift shop, and a café. The first floor contains the conference center, while the basement accommodates offices and an additional VR room.

Bioclimatic Design
Within the framework of sustainable construction, the project is environmentally friendly, bioclimatic, and technologically advanced. Materials, technologies, and techniques have been adopted to minimize environmental impact and to create a zero-energy building. A double ventilated façade system reduces the thermal mass of the walls, as natural ventilation is distributed through the two layers.
Optimal orientation was pursued to maximize beneficial solar heat gains, along with the careful design of openings to ensure ample natural daylight, views toward the planted exterior environment, and cross-ventilation of interior spaces. In the basement, both a light well for daylighting and an air shaft for natural ventilation were created. Water features were also integrated into the composition, contributing significantly to overall cooling.
The green roof, as part of the passive design strategy, improves thermal insulation and the microclimate. At the same time, the use of renewable energy sources – photovoltaic solar panels installed on the dome – ensures the building’s autonomous energy operation.






