Designing for the perimeter
The new Zubiaur Musika Eskola in Amorebieta-Etxano, on the outskirts of Bilbao, emerged from an architectural competition held in 2015. Conceived as both an addition and a reinterpretation of its context, the project establishes a clear dialogue with the existing facilities while asserting its own architectural identity.
Context Integration
The building transforms the existing dividing wall into an additional façade, completing and redefining the perimeter of the current complex. The original wall of the adjoining frontón ballcourt is preserved and elevated as the central protagonist of the intervention. By exposing and layering the successive walls, the project makes the passage of time legible, allowing traces of the site’s history to remain visible. In doing so, the design safeguards local heritage and collective memory, integrating them into the contemporary architectural language.
Once the formal autonomy of the neighboring cultural center is acknowledged, the Musika Eskola operates as an independent volume. It respects the orthogonality and abstraction of the surrounding structures, yet distinguishes itself as a singular and recognizable element within the ensemble.

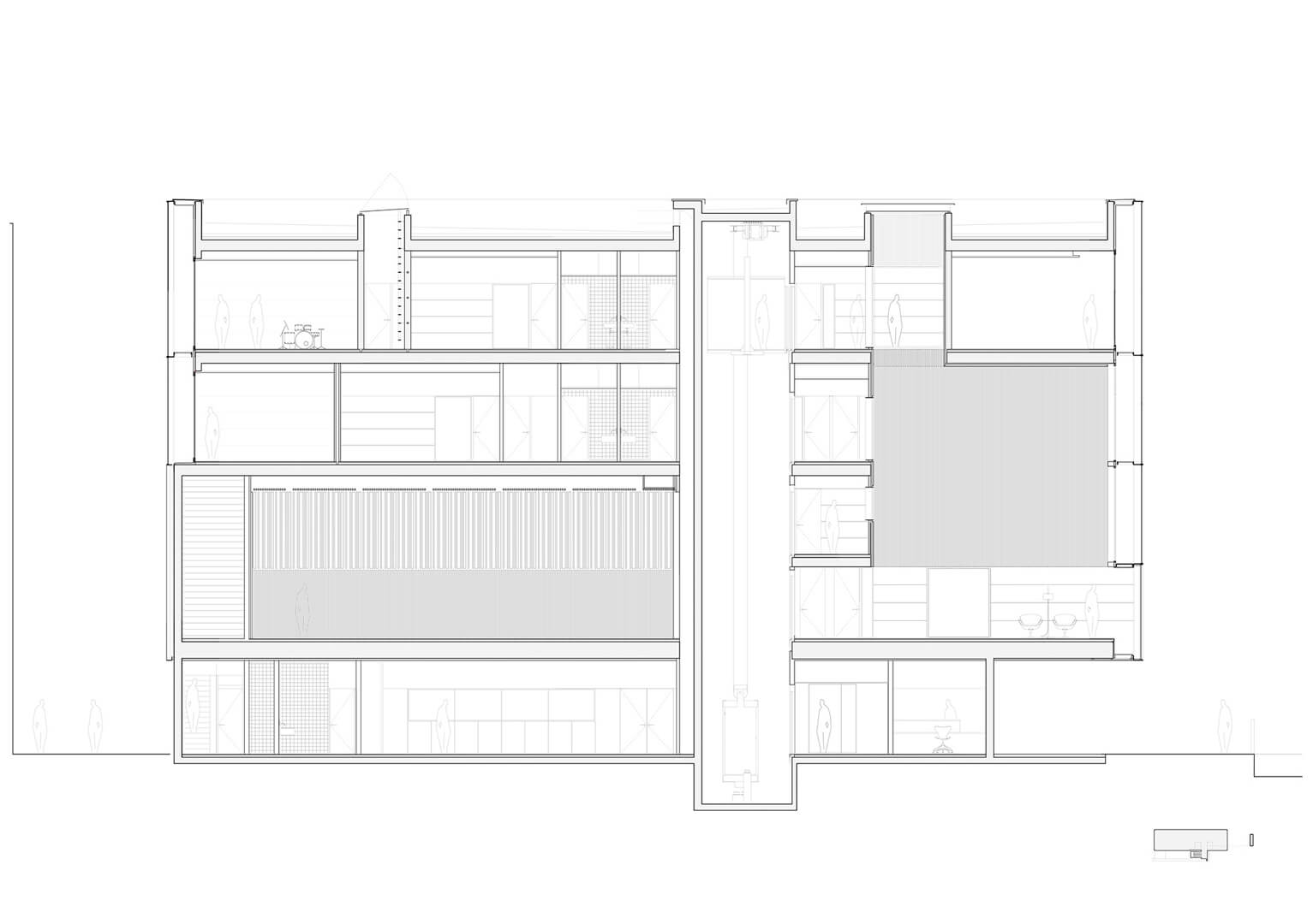
Spatial Organization
The newly conceived façade-dividing wall is set apart from the main volume, generating a ground-floor patio and a vertical void that extends alongside the upper levels. The plan wraps around this courtyard, which functions both as a drainage basin and as a rainwater retention space in the event of flooding.
A subtle setback from the longitudinal façade creates a sheltered porch at ground level, marking the main entrance and reinforcing its civic presence. Above, the upper floors complete the program in the form of a regular three-story prism, arranged parallel to the new façade-wall and complemented by a projecting corbel. The compact floor plates maximize usable surface area, forming an efficient and clearly defined spatial container.

Façade & Staircase Design
To achieve fully open-plan interiors, the structural system is pushed to the perimeter, allowing the façade to act as a self-supporting envelope. This strategy liberates the interior from structural constraints, enhancing flexibility and spatial clarity.
The staircases are positioned outside the primary prism and enclosed in glass, heightening transparency and reinforcing the building’s abstract character. More than a circulation device, the stair becomes an architectural promenade: it frames views toward the adjacent park, reveals the scale of the internal courtyard, and underscores the building’s identity as an extended, cohesive, and singular spatial composition.






